エクステリア専門相談サポート窓口
0572-26-8050

受付時間平日 9:00〜17:00

駐車場用品Parking Supplies

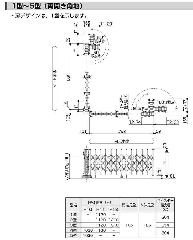
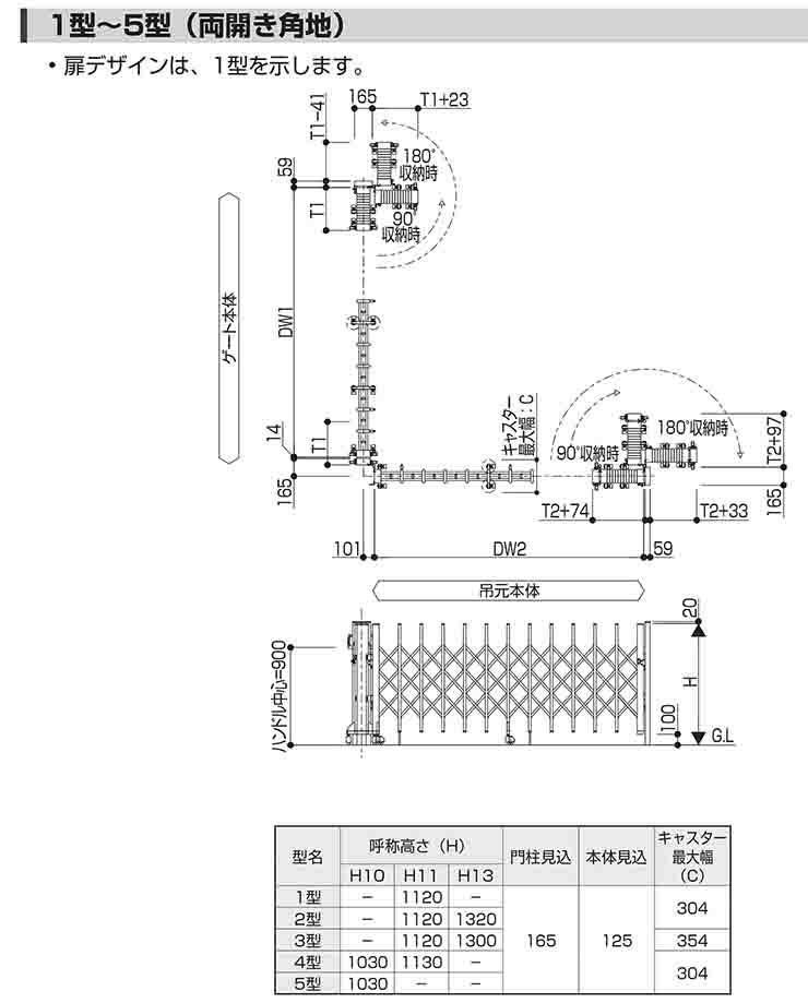
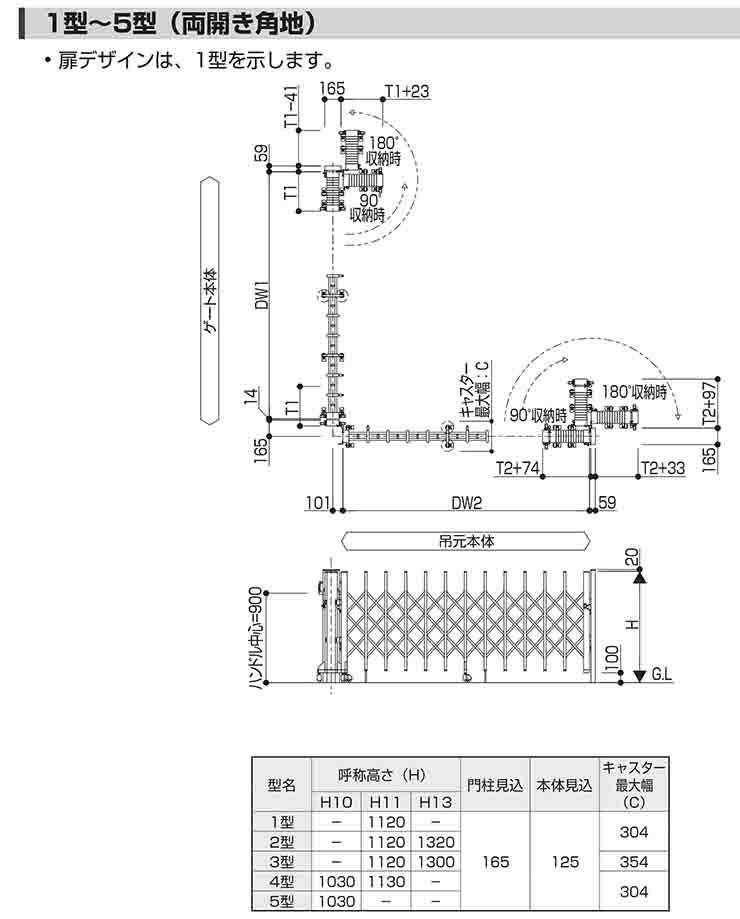
【駐車場用品特集】快適で使いやすい駐車スペースづくりをサポート – サンガーデンエクステリア本店 駐車場まわりをもっと便利に、安全にしたい方へ。【サンガーデンエクステリア本店】では、戸建て住宅や集合住宅、店舗などの駐車スペースで役立つ駐車場用品を豊富に取り扱っています。車止めブロック(パーキングブロック)や輪止め、駐車ラインテープ、段差スロープ、屋外照明、防犯カメラなど日常の困りごとを解消するアイテムを多数ラインアップ。 「駐車が難しい」「見た目をすっきりさせたい」「安全対策を強化したい」といったお悩みに対して、駐車場の広さ・傾斜・舗装状態など用途や設置環境に合わせた商品選びのポイントをわかりやすくご提案。また、実際に人気のある商品がわかる「駐車場用商品人気ランキング」も掲載中です。快適で安心な屋外駐車スペース・カースペースを実現するなら、エクステリア専門の当店にぜひご相談ください。

並び替え
3773件中 601-700件表示
1 6 7 8 38
並び替え
3773件中 601-700件表示
1 6 7 8 38