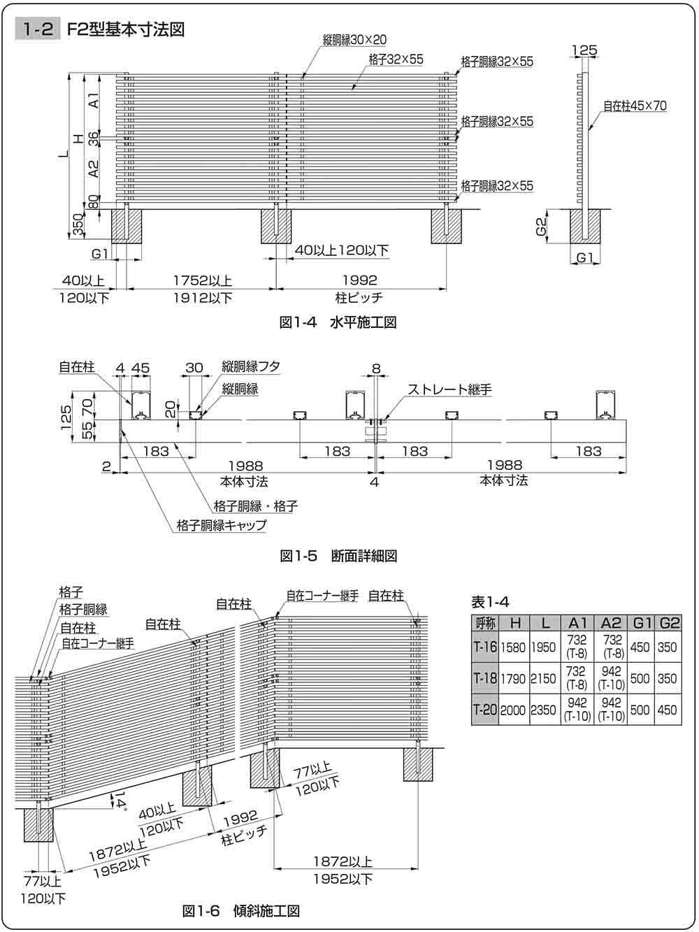
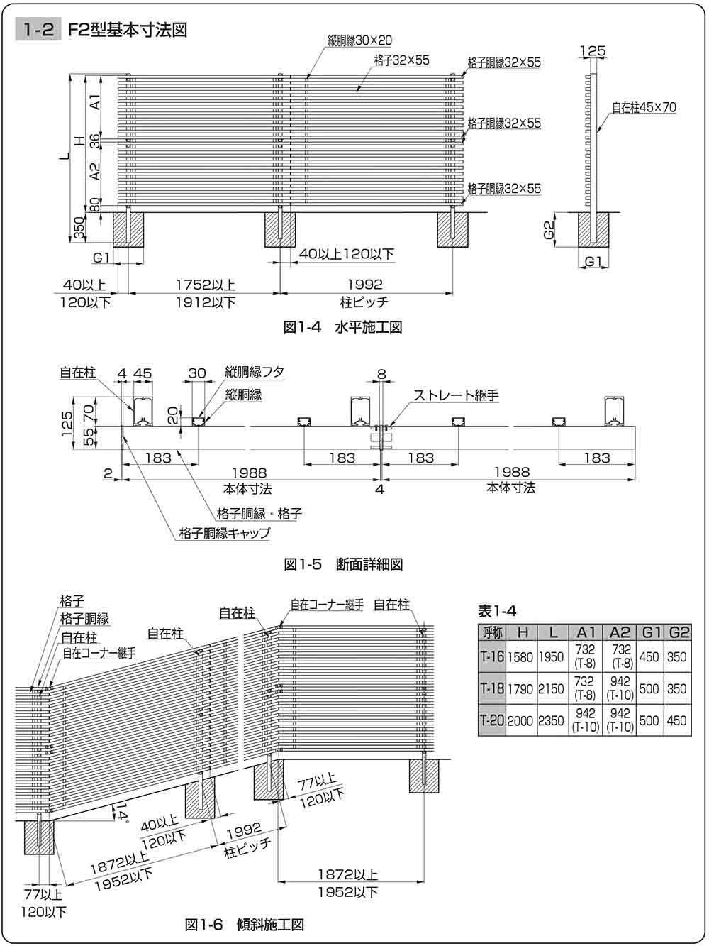
用途で選ぶSelect by Use
理想のアルミフェンスが見つかるリクシル、YKKapなど人気メーカー多数!デザイン・価格・用途で選べる専門店お庭や外構の境界線を美しく機能的に彩るアルミ製フェンス・外構用目隠しフェンスをお探しですか?当ショップでは、リクシル、YKKap、三協アルミ、四国化成など一流メーカーの高品質なアルミフェンスを豊富にご用意。最新デザインはもちろん、耐久性・防犯性・施工性に優れたモデルまで、多様なニーズにお応えします。デザイン、価格に加え、設置場所や目的に合わせた選び方も可能。プライバシー保護に最適な目隠しタイプから、開放的なロータイプ、風通しの良い格子デザインまで豊富にラインナップ。ご予算や人気ランキングも参考に、理想のフェンスをお選びいただけます。用途に合わせて選べるのも魅力。隣家との境界、外構の区画分け・目隠し、お子様やペットの安全対策など、最適な高さやデザインをご提案。素材(アルミ・樹脂・木調)やカラーバリエーションも豊富で、住まいの外観や庭の雰囲気に調和するフェンスがきっと見つかります。商品の詳細なご案内から設置に関するご相談、柱やゲートとの組み合わせ提案まで、専門スタッフが丁寧に対応。「どのフェンスを選べば良いかわからない」といった疑問にも親切にお答えします。お庭や外構をより美しく安全にするアルミフェンス。豊富な品揃えと丁寧なサポートで、お客様の理想のフェンス選びを全力でお手伝い。ぜひ当ショップで、お気に入りのアルミフェンスを見つけてください。
用途で選ぶ
売れ筋人気ランキングRANKING
用途で選ぶ
専門スタッフおすすめ商品FEATURED PRODUCTS
日本全国のお客様からご注文をいただき、多くのお客様に選ばれた大人気のフェンス・目隠しフェンスや、
多数の商品を取り扱う当店が今おすすめしたい厳選ポストをご紹介します。
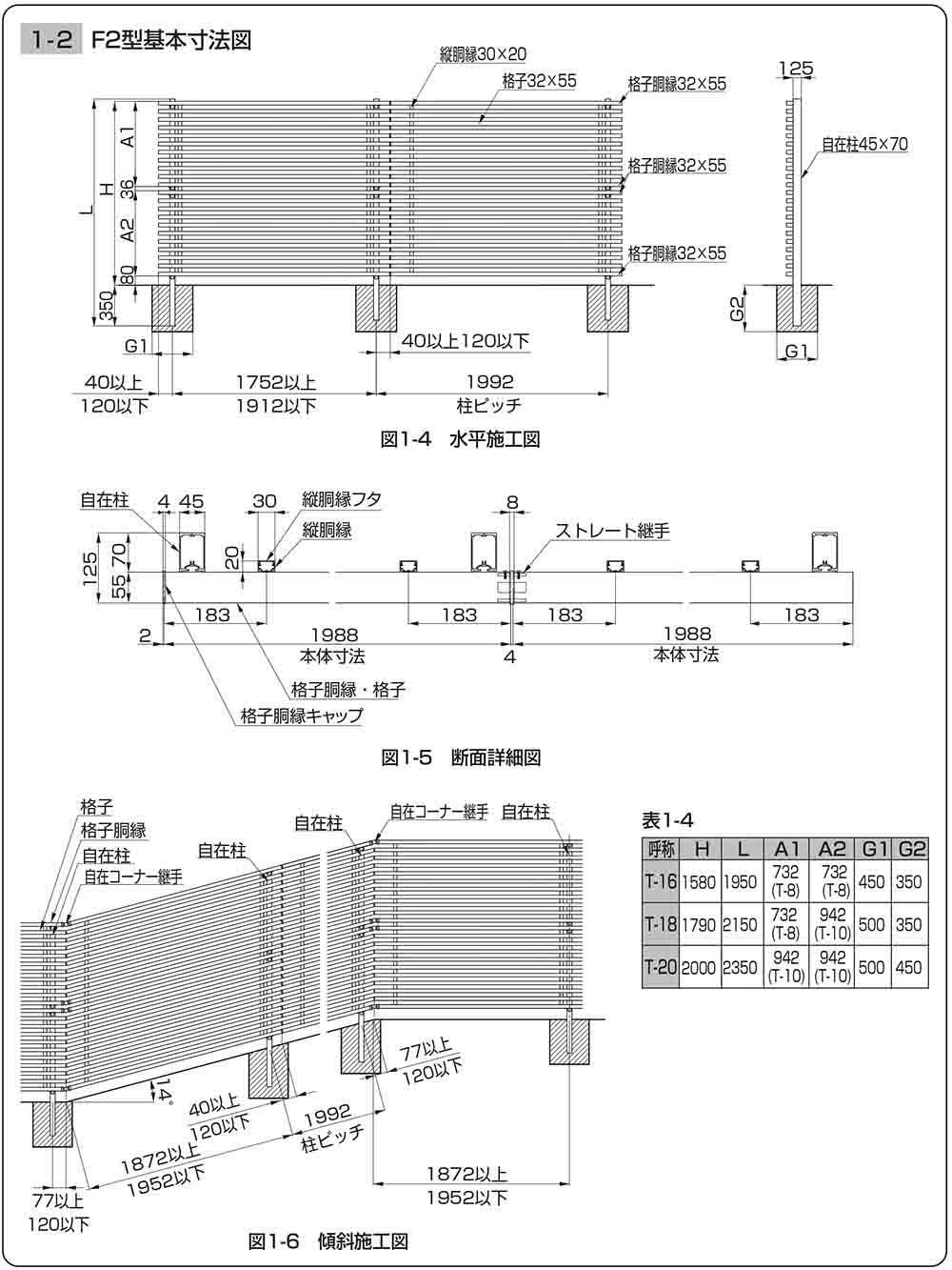
シンプレオフェンスYL1型と
同デザインの傾斜地用フェンス!
YKKap シンプレオフェンスYL1K型 はYL1型の傾斜地対応タイプで連結も可能です。こちらも風が抜けるルーバーフェンスです。
詳しく見る用途で選ぶ
おすすめメーカーRECOMMEND MAKER
LIXIL
エクステリア商材といえばLIXILと言われるほど大手のアルミメーカー。LIXILは、2011年に国内の主要な建材・設備機器メーカー、トステム、INAX 、新日軽、サンウエーブ工業、東洋エクステリアの5社が統合して誕生しました。
LIXILのフェンスを見る
YKKap
窓やファスナーでおなじみの大手アルミメーカーのYKKapは、材料から製造設備、製品までを自社で開発・生産する「一貫生産思想」に基づき、ねじ一本までこだわって自社内で設計・製造するというこだわりが魅力です。
YKKapのフェンスを見る
三協アルミ
LIXILやYKKapと比べると認知度は低いかもしれませんが、大手アルミメーカーの三協アルミは、得意なアルミ形材を生かしたポストを製造しています。製造・組立まで富山県で行っており、国内製造の安心クオリティが魅力です。
三協アルミのフェンスを見る
四国化成
門扉・フェンス・カーポートなど、エクステリア商材と壁材・舗装材の大手メーカーです。Gマーク(グッドデザイン賞)を受賞した伸縮構造のアコーディオン門扉など独創的な製品の製造を行っています。
四国化成のフェンスを見る
エクステリア
売れ筋人気ランキングRANKING
当店では今人気のシンプルでお洒落なポストやお庭を華やかに演出するお庭の水道には欠かせないおしゃれな立水栓など多数ご用意がございます。
また、近年人気急上昇中の安心、安全な一流メーカーのモダンで美しい宅配ボックスも多数ご用意しておりますので是非ご検討してみて下さい。
-
1位
パナソニック
郵便ポスト クリアスFF
13,400円(税込)
-
2位
ユニソン
スプレスタンド60ソリッド 蛇口2個セット(シルバー)
27,360円(税込)
-
3位
三協アルミ
郵便ポスト SWEポスト
21,950円(税込)
-
4位
ユニソン
スプレスタンド60ソリッド 蛇口2個セット + シャインパン
39,780円(税込)
-
5位
サンガーデンエクステリア
二層板表札【サイズ:120×30mm】
960円(税込)
-
6位
サンガーデンエクステリア
シンプルポストユニット 1型 照明なし本体 T13型ポスト(簡易錠) セット 上入れ前出し
22,600円(税込)
-
7位
サンガーデンエクステリア
タイル表札 TiNa ティナ
7,500円(税込)
-
8位
[ブランド名]
宅配ボックス コンボ ミドルタイプ本体 後出しFR
53,970円(税込)

