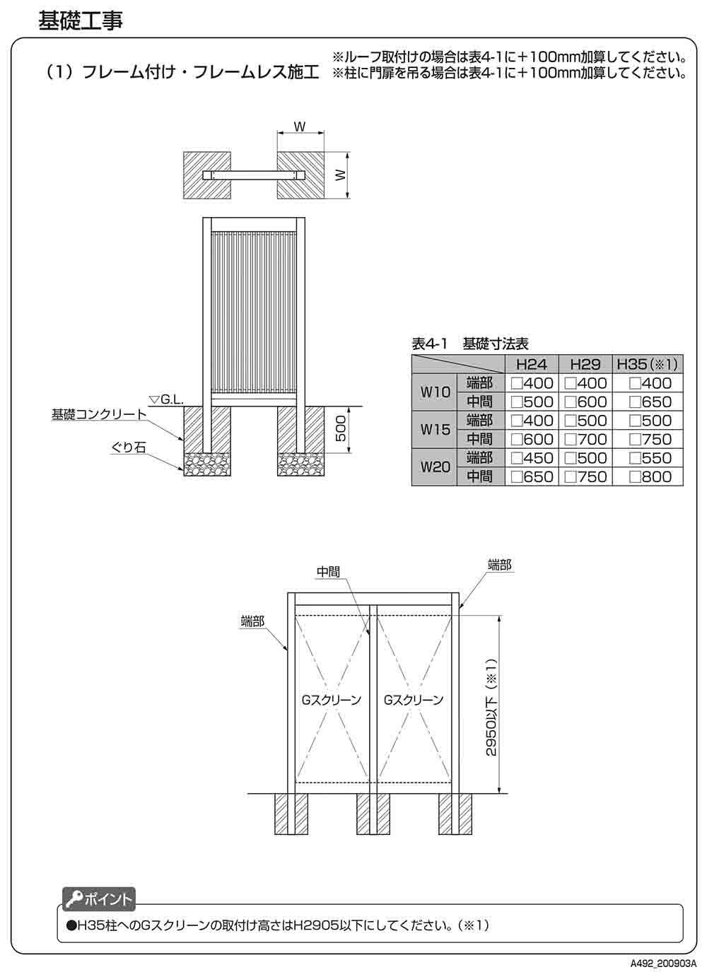
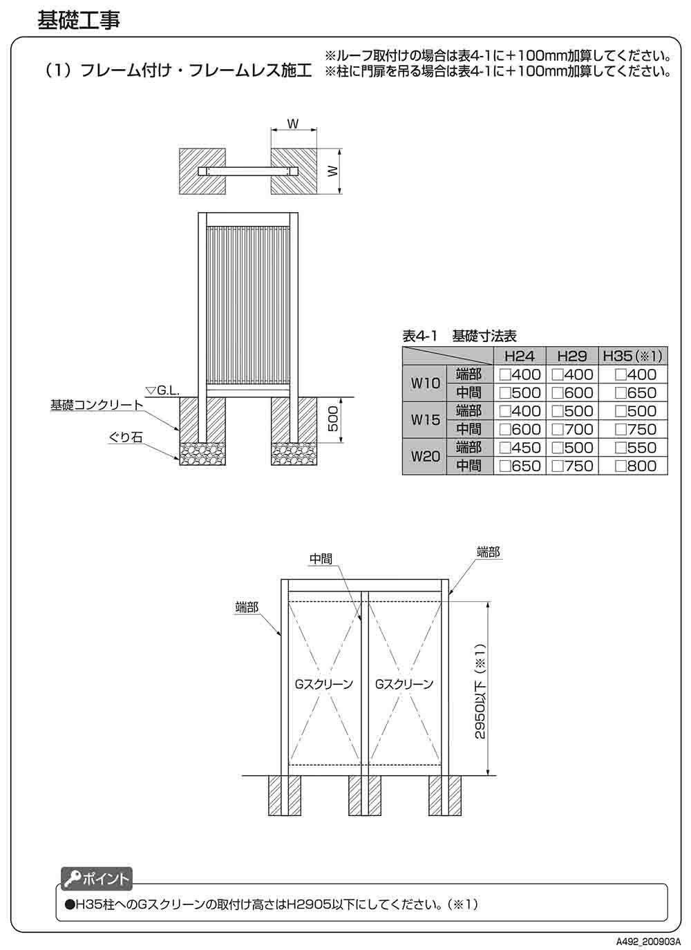
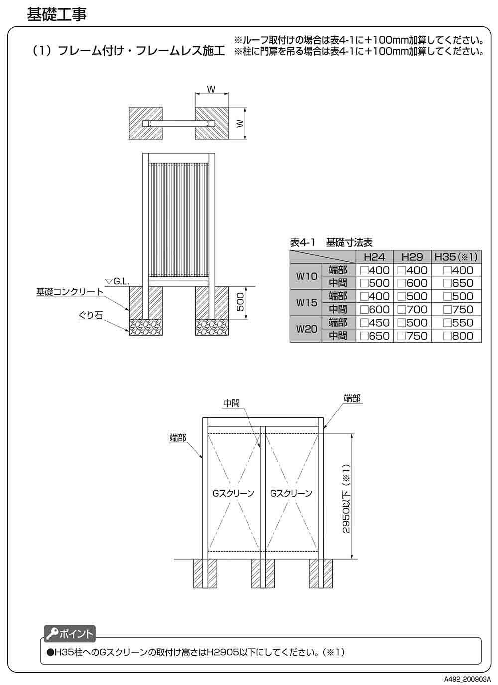
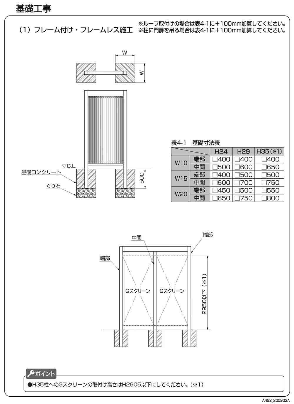
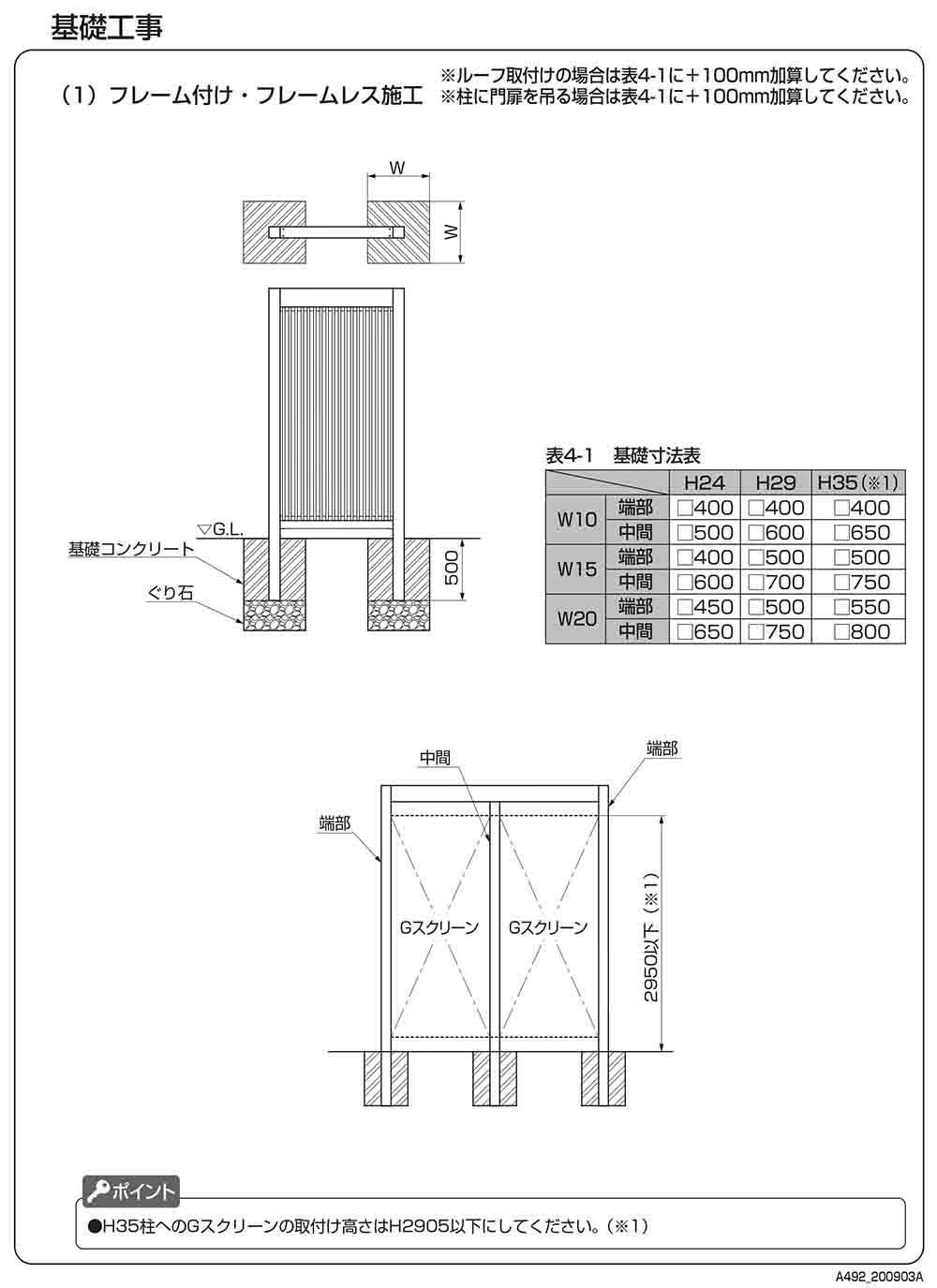
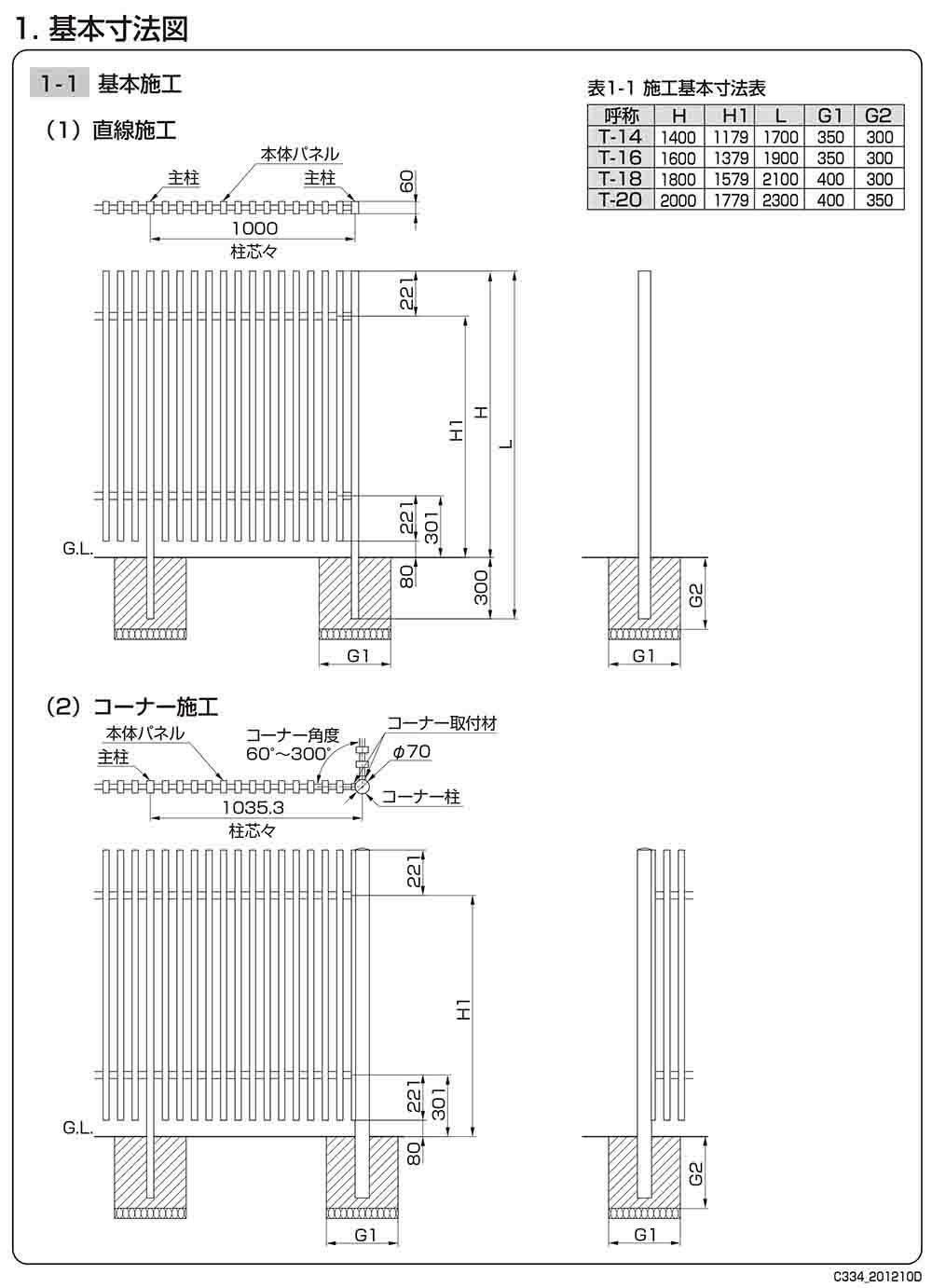
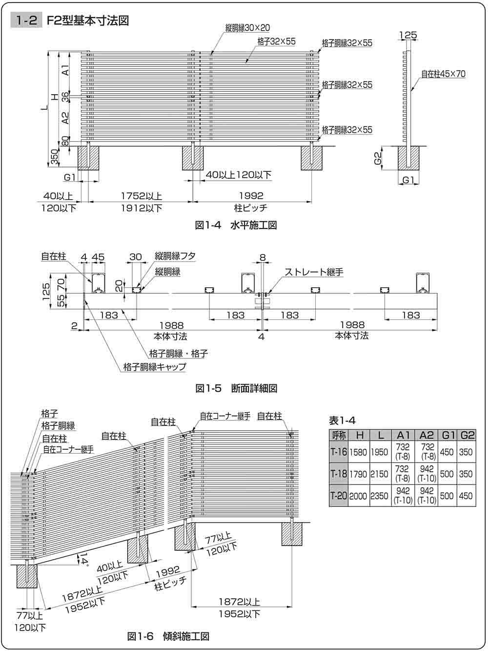
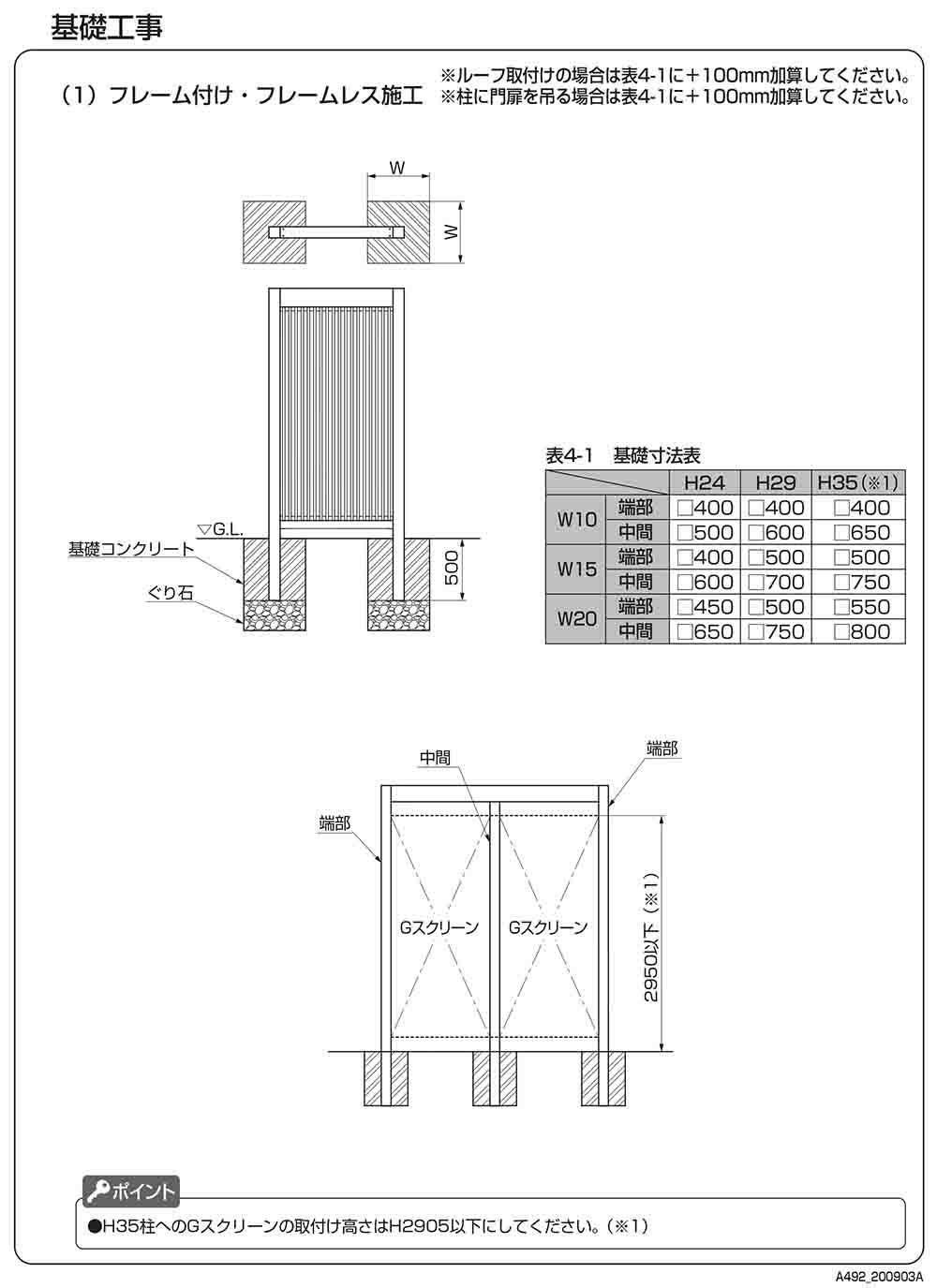
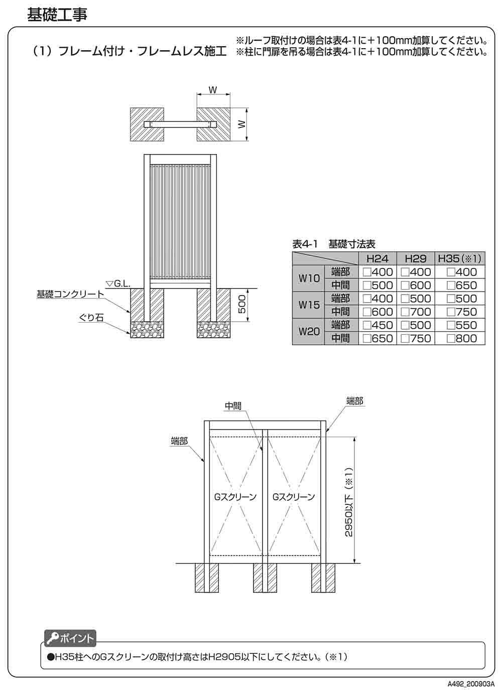
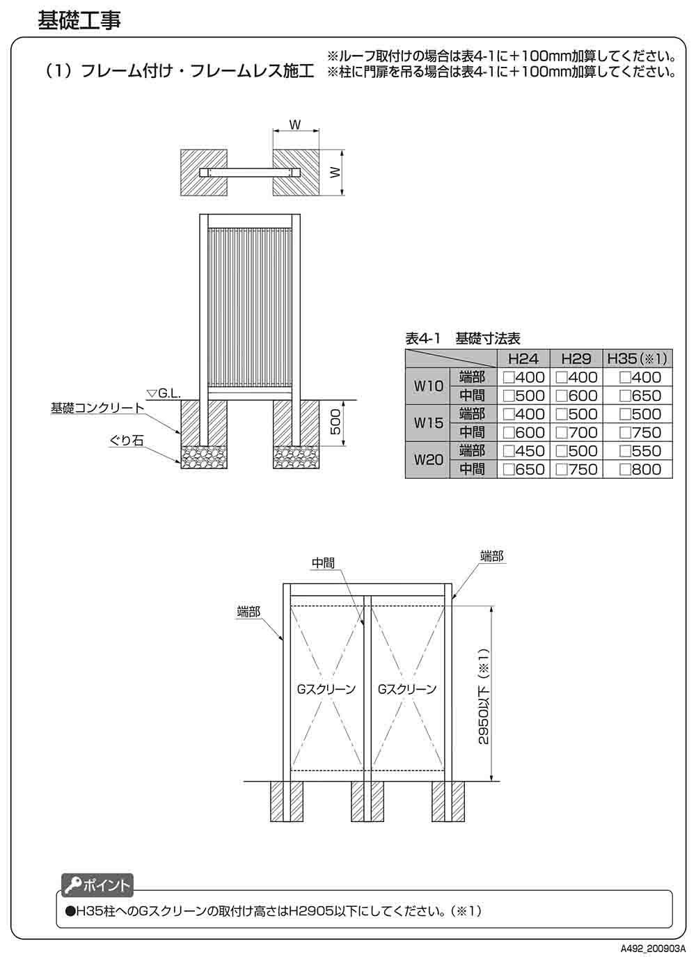
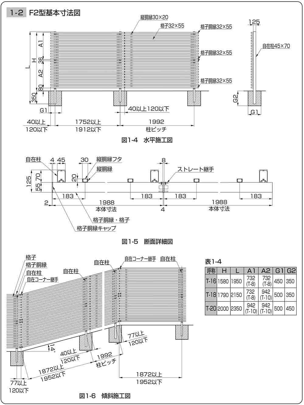
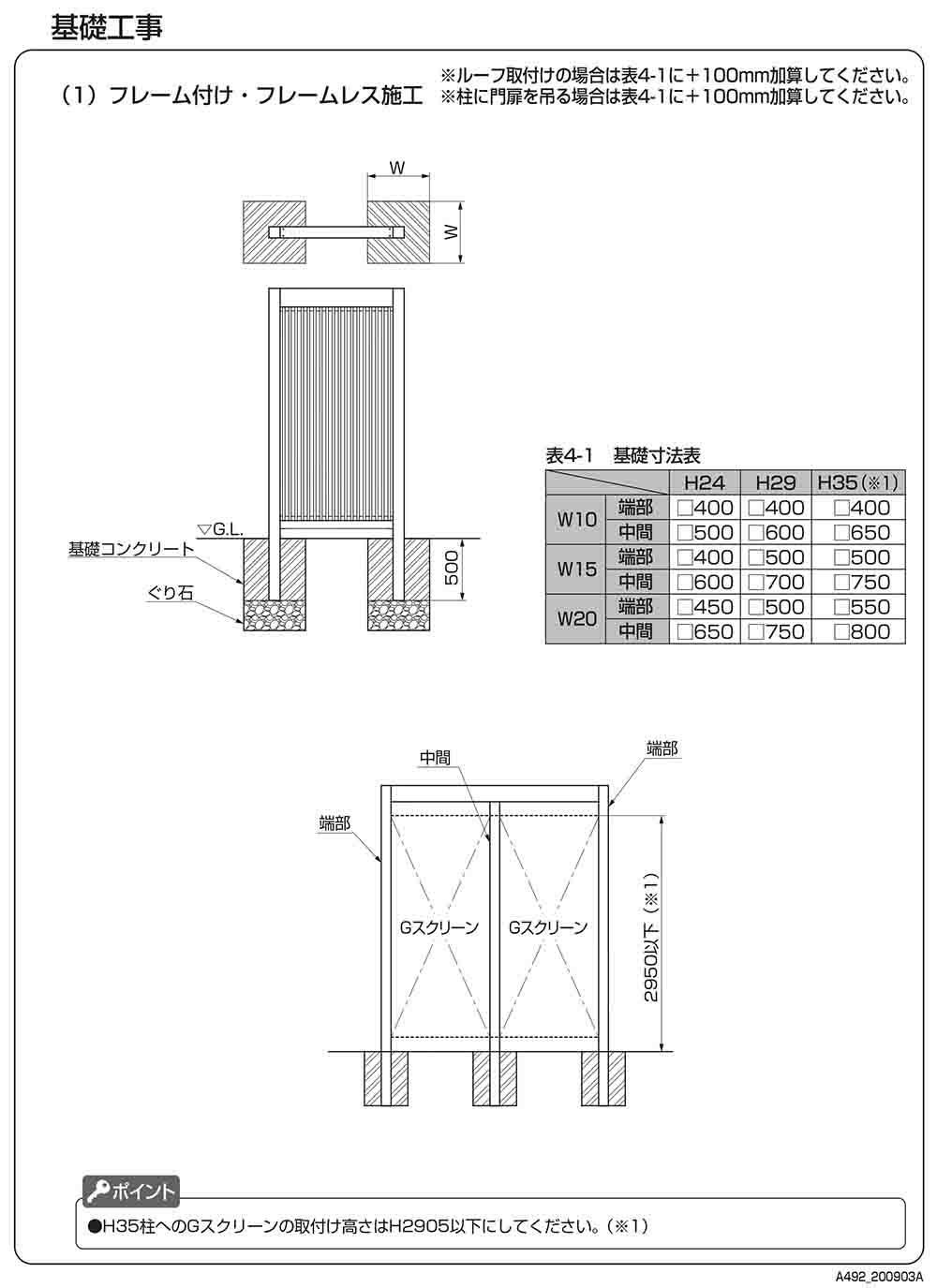
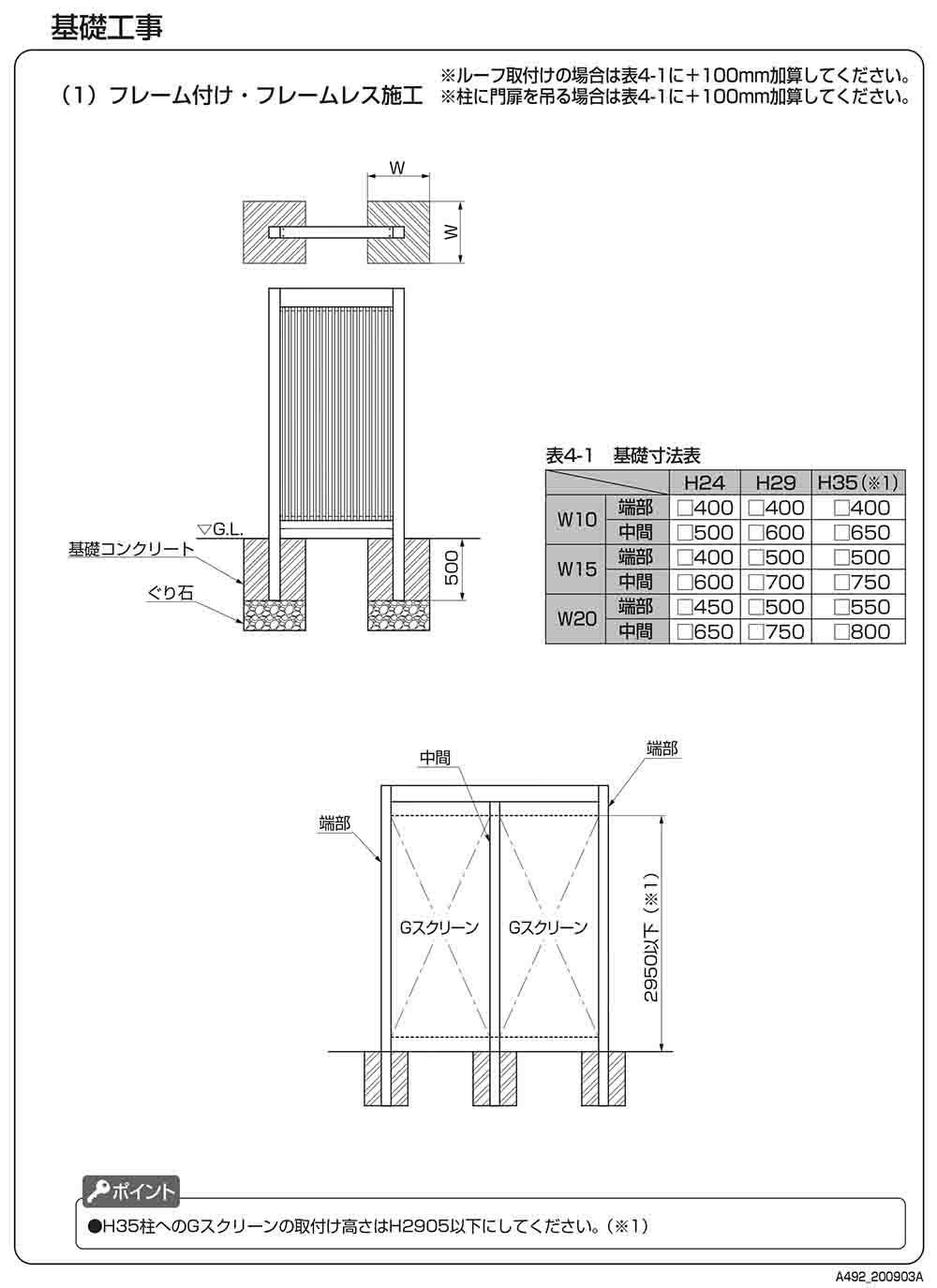
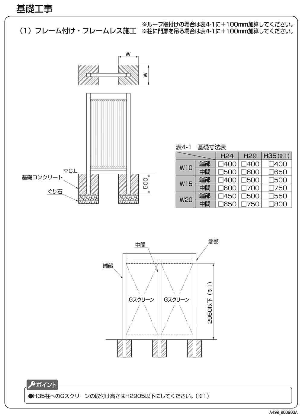
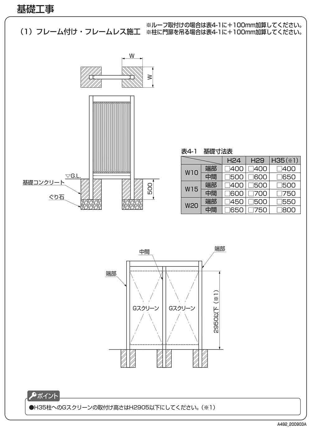
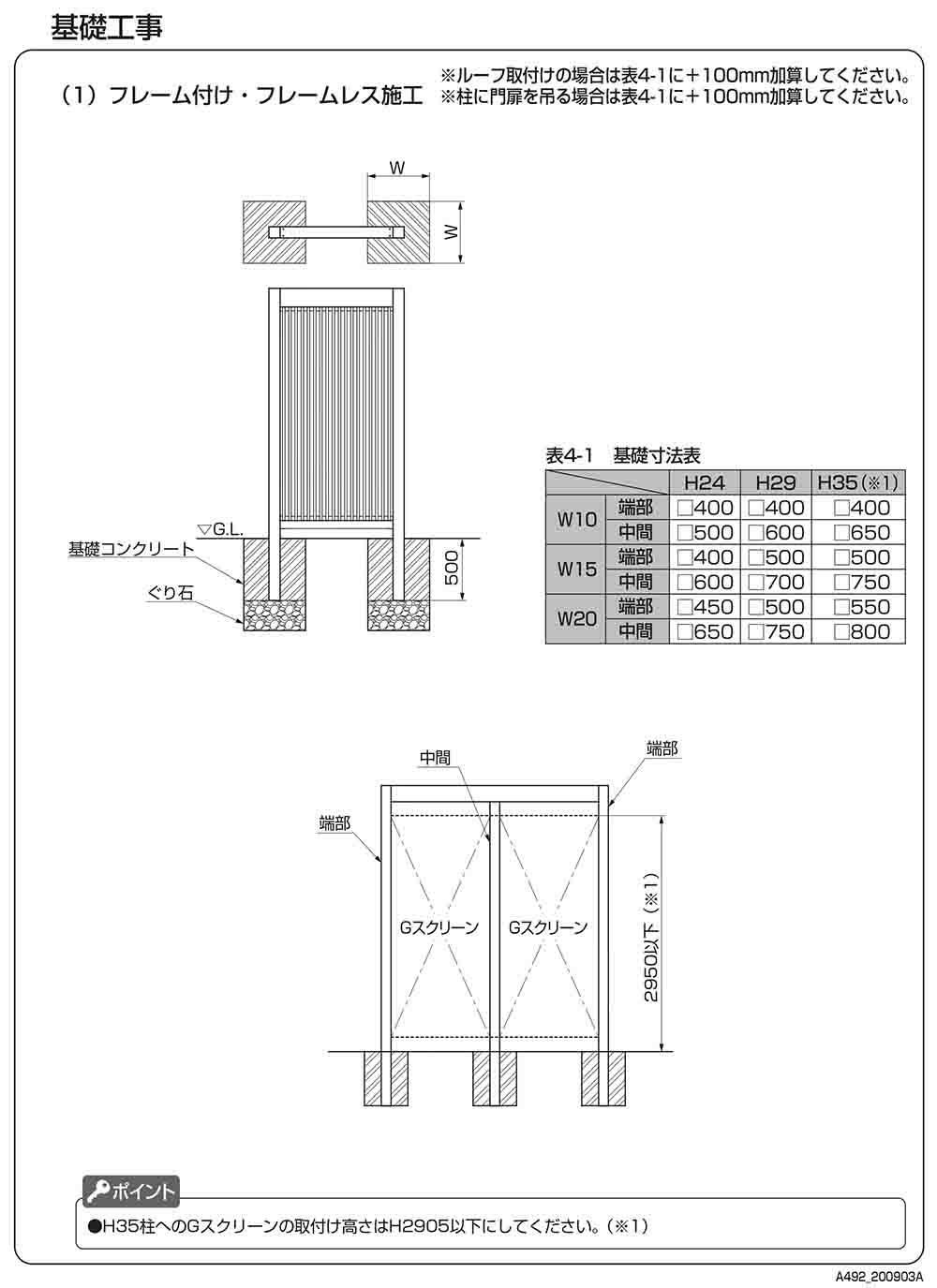
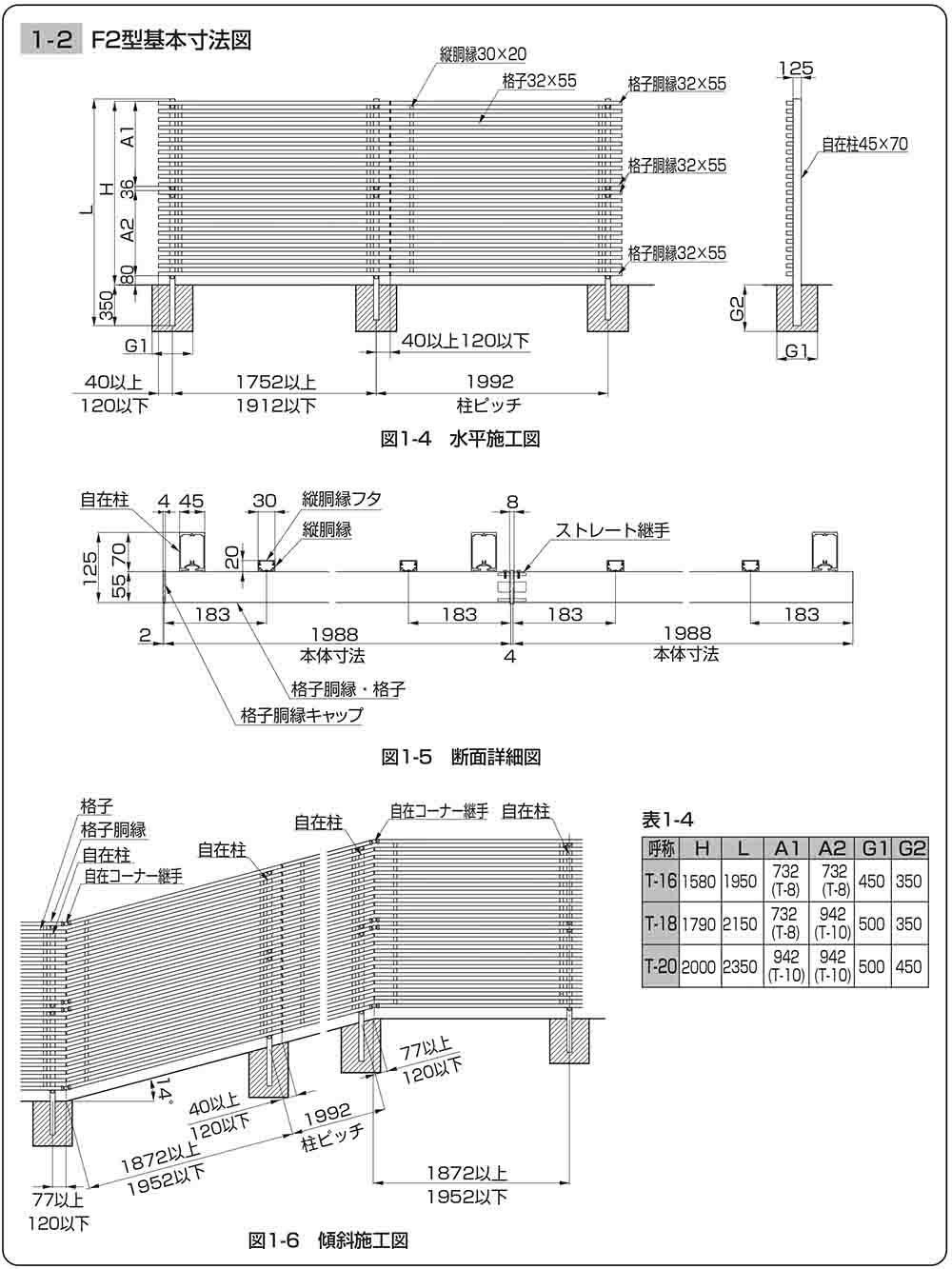
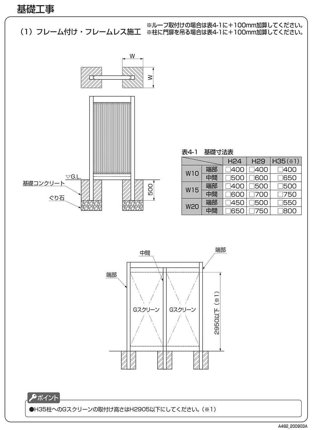
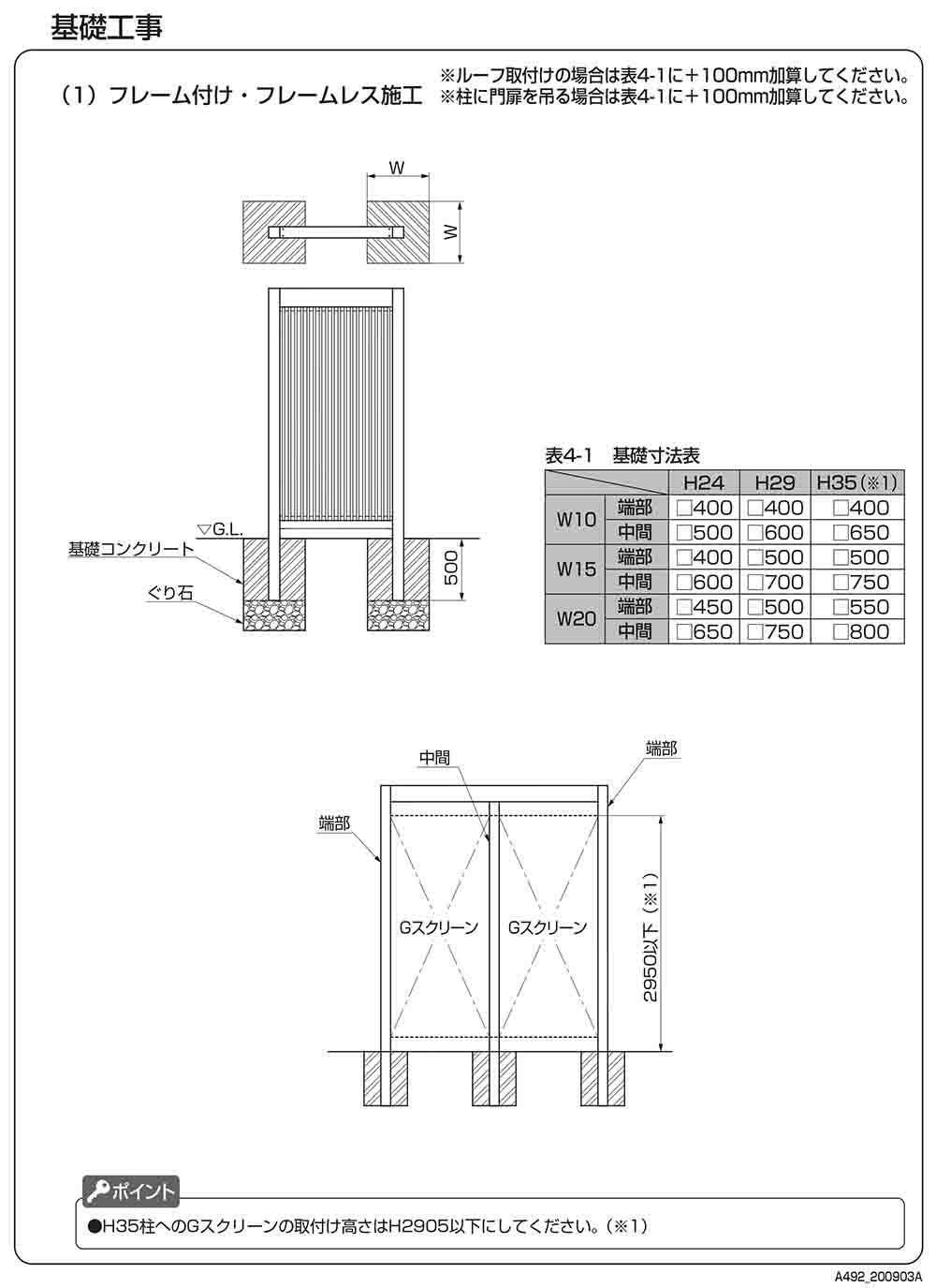
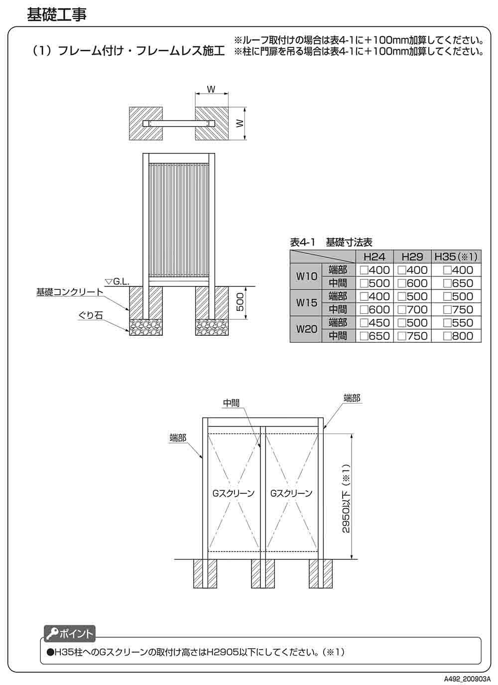
デザイン・形状で選ぶSelect by design and shape
理想のアルミフェンスがきっと見つかる人気メーカー勢揃い!豊富なデザインと形状から選べる専門店お庭や外構の印象を大きく左右するアルミ製フェンス・エクステリアフェンス。リクシル、YKKap、三協アルミ、四国化成など、信頼性と実績を誇る国内メーカー製品を豊富にご用意。住まいのスタイルやお客様のこだわりに合う、理想のアルミフェンスがきっと見つかります。プライバシーを守る完全目隠しタイプから、開放的なメッシュタイプ・ルーバータイプ、スタイリッシュな格子デザインまで、形状も多彩。高さ、幅、カラーもバリエーション豊かに揃え、設置場所や用途に最適なフェンスをお選びいただけます。価格帯・機能性・人気ランキングも参考に、比較検討も簡単です。商品の詳細情報はもちろん、DIY向け設置マニュアルや柱・ゲートとの組み合わせ提案など施工に関するご提案も承ります。専門スタッフが丁寧に対応いたしますので、初めての方も安心してお任せください。お庭の境界線、プライバシー保護、防犯対策など、様々な用途に対応する高耐久なアルミフェンス。豊富な品揃えと丁寧なサポートで、お客様のフェンス選びを全力でお手伝い。ぜひ当ショップで、長く愛用できるお気に入りを見つけてください。
デザイン・形状で選ぶ
売れ筋人気ランキングRANKING
デザイン・形状で選ぶ
専門スタッフおすすめ商品FEATURED PRODUCTS
日本全国のお客様からご注文をいただき、多くのお客様に選ばれた大人気のデザイン・形状フェンスや、
多数の商品を取り扱う当店が今おすすめしたい厳選ポストをご紹介します。
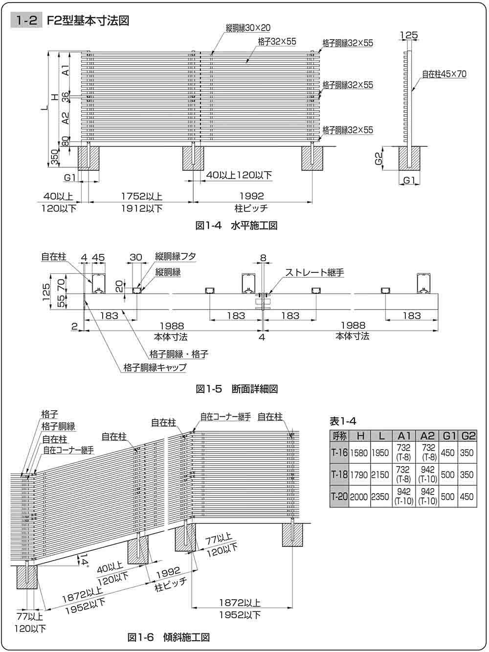
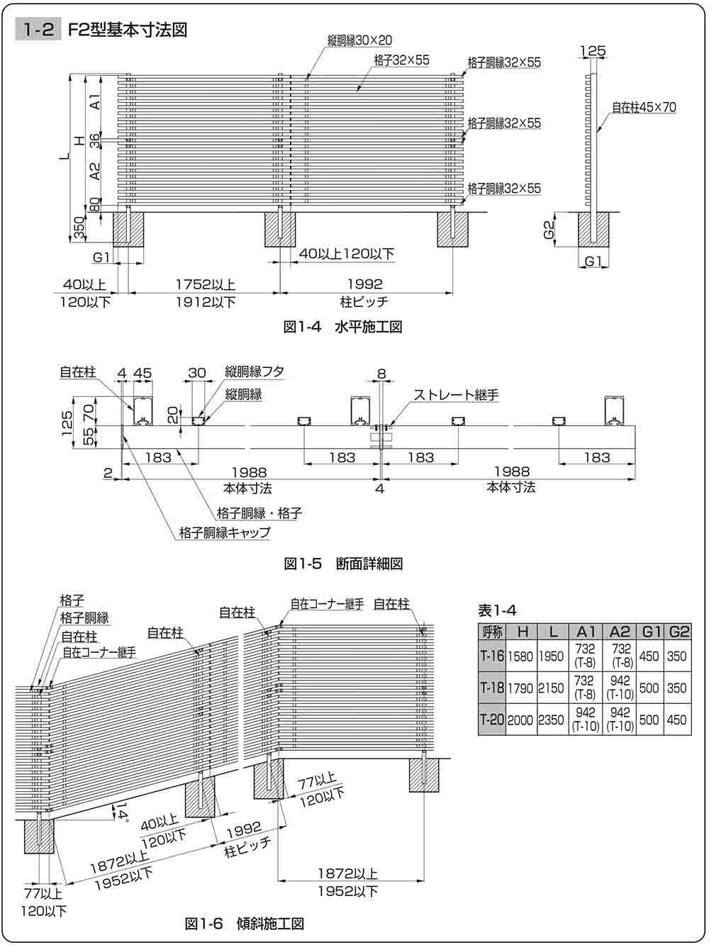
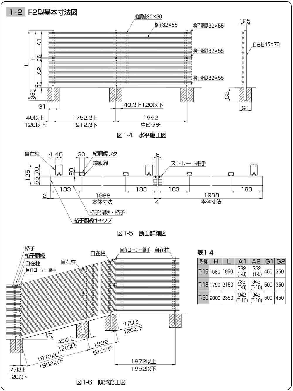
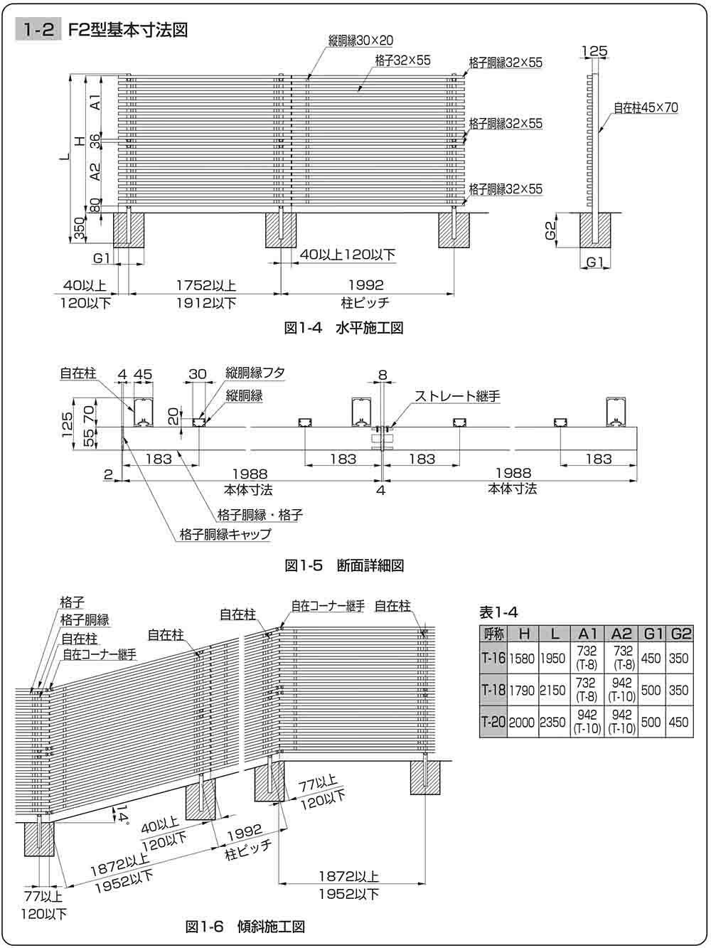
シンプレオフェンスYL1型と
同デザインの傾斜地用フェンス!
YKKap シンプレオフェンスYL1K型 はYL1型の傾斜地対応タイプで連結も可能です。こちらも風が抜けるルーバーフェンスです。
詳しく見るデザイン・形状で選ぶ
おすすめメーカーRECOMMEND MAKER
LIXIL
エクステリア商材といえばLIXILと言われるほど大手のアルミメーカー。LIXILは、2011年に国内の主要な建材・設備機器メーカー、トステム、INAX 、新日軽、サンウエーブ工業、東洋エクステリアの5社が統合して誕生しました。
LIXILのフェンスを見る
YKKap
窓やファスナーでおなじみの大手アルミメーカーのYKKapは、材料から製造設備、製品までを自社で開発・生産する「一貫生産思想」に基づき、ねじ一本までこだわって自社内で設計・製造するというこだわりが魅力です。
YKKapのフェンスを見る
三協アルミ
LIXILやYKKapと比べると認知度は低いかもしれませんが、大手アルミメーカーの三協アルミは、得意なアルミ形材を生かしたポストを製造しています。製造・組立まで富山県で行っており、国内製造の安心クオリティが魅力です。
三協アルミのフェンスを見る
四国化成
門扉・フェンス・カーポートなど、エクステリア商材と壁材・舗装材の大手メーカーです。Gマーク(グッドデザイン賞)を受賞した伸縮構造のアコーディオン門扉など独創的な製品の製造を行っています。
四国化成のフェンスを見る
エクステリア
売れ筋人気ランキングRANKING
当店では今人気のシンプルでお洒落なポストやお庭を華やかに演出するお庭の水道には欠かせないおしゃれな立水栓など多数ご用意がございます。
また、近年人気急上昇中の安心、安全な一流メーカーのモダンで美しい宅配ボックスも多数ご用意しておりますので是非ご検討してみて下さい。
-
1位
パナソニック
郵便ポスト クリアスFF
13,400円(税込)
-
2位
ユニソン
スプレスタンド60ソリッド 蛇口2個セット(シルバー)
27,360円(税込)
-
3位
三協アルミ
郵便ポスト SWEポスト
21,950円(税込)
-
4位
ユニソン
スプレスタンド60ソリッド 蛇口2個セット + シャインパン
39,780円(税込)
-
5位
サンガーデンエクステリア
二層板表札【サイズ:120×30mm】
960円(税込)
-
6位
サンガーデンエクステリア
シンプルポストユニット 1型 照明なし本体 T13型ポスト(簡易錠) セット 上入れ前出し
22,600円(税込)
-
7位
サンガーデンエクステリア
タイル表札 TiNa ティナ
7,500円(税込)
-
8位
[ブランド名]
宅配ボックス コンボ ミドルタイプ本体 後出しFR
53,970円(税込)

