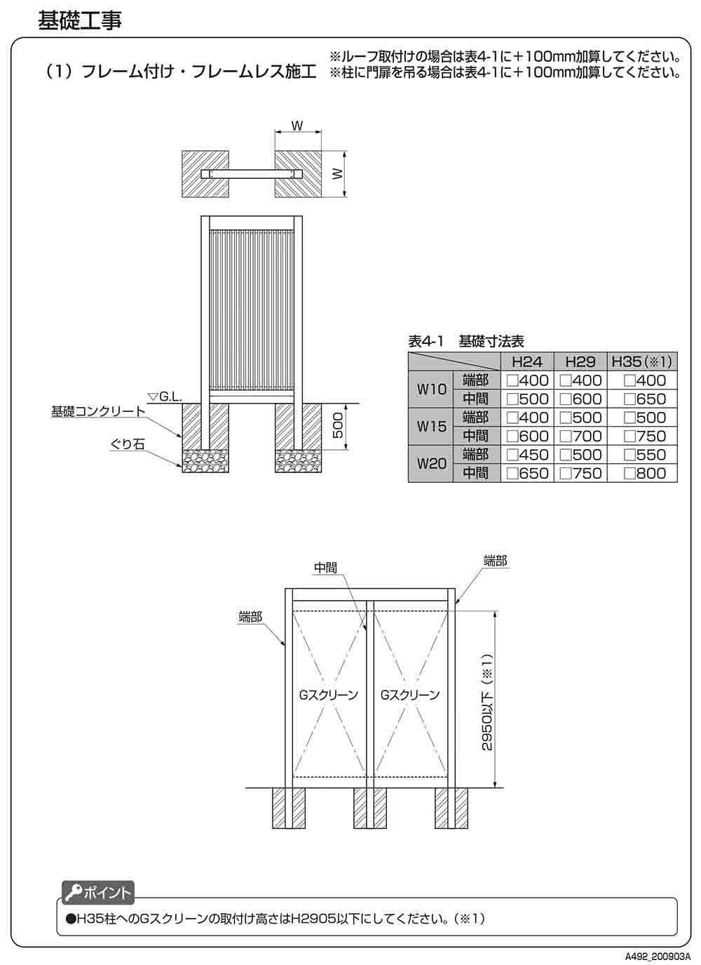
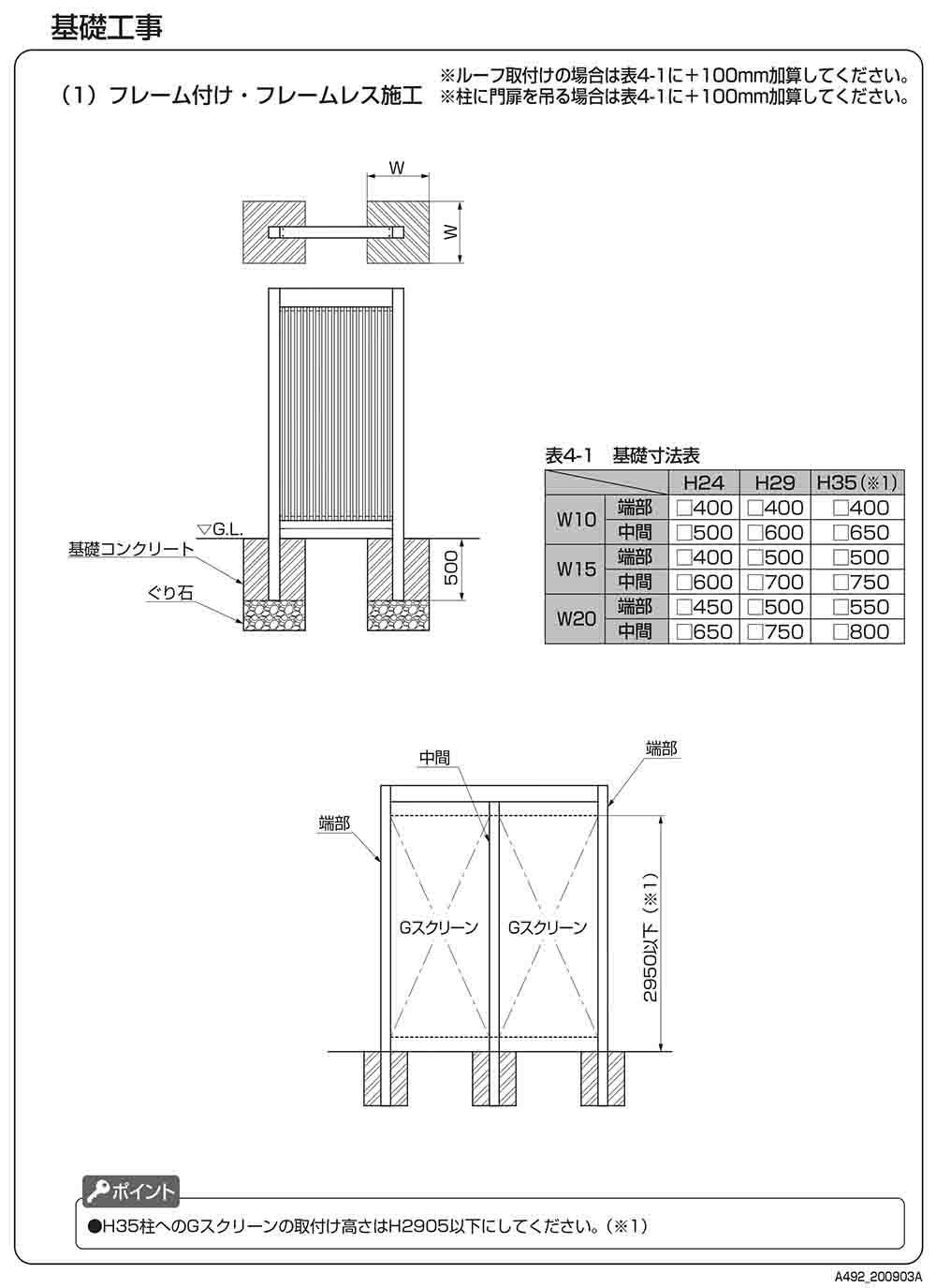
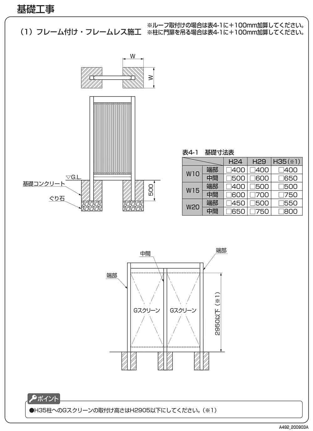
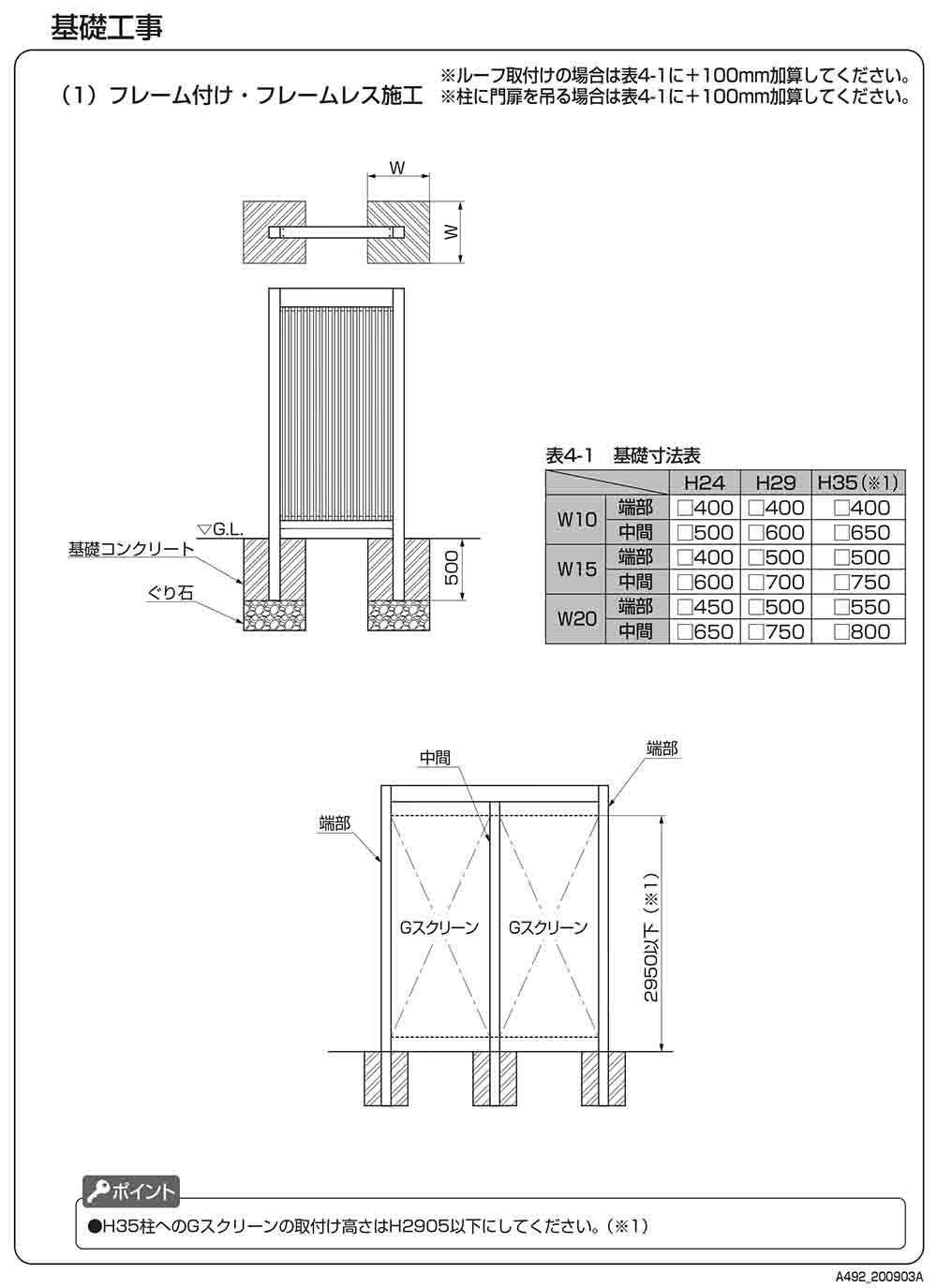
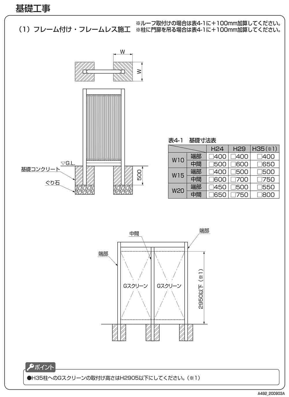
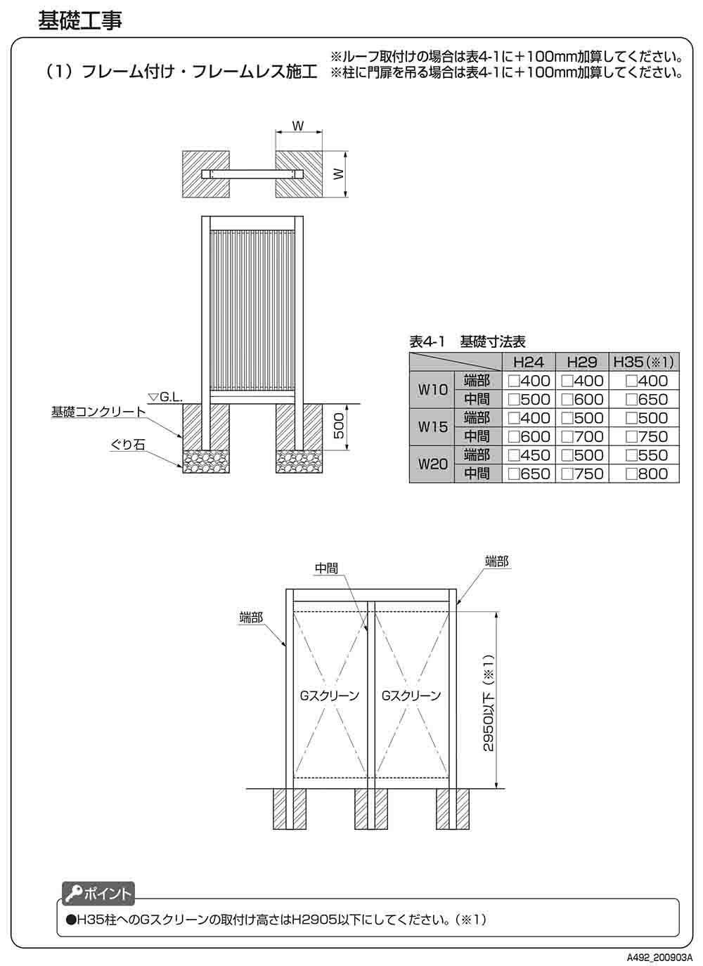
素材で選ぶSelect by Material
素材で選ぶ理想のフェンス!アルミ・木調・鋳物など豊富なラインナップ!人気ランキングも充実お庭や外構の理想を形にするフェンスをお探しですか?当ショップでは、様々な素材の高品質なエクステリアフェンス・境界フェンスを豊富に取り揃えております。耐久性に優れ、スタイリッシュなアルミフェンスをはじめ、温かみのある木目調フェンス、デザイン性の高い鋳物フェンスなど、豊富なラインナップをご用意。理想のエクステリアデザインや機能に合わせて、ぴったりのフェンスが見つかるはずです。素材別に選べるのはもちろん、縦格子・横格子・ルーバー・メッシュなどデザインや形状も豊富。完全目隠しタイプや通気性重視タイプなど、お庭の雰囲気に合わせてお選びいただけます。高さや幅、カラーバリエーションも豊富なので、設置場所や用途に最適なフェンスをお選びいただくことが可能です。どのフェンスを選んだら良いか迷ってしまう…そんなお客様もご安心ください。当ショップでは、特徴・耐久性・メンテナンス性・価格帯などを比較しながらフェンスをお選びいただけます。それぞれのフェンスの素材の特徴やデザイン、価格帯などを比較検討しながら、理想のフェンスを見つけてください。商品の詳細情報はもちろん、DIY設置のポイントや日常のお手入れ方法までわかりやすくご案内。異なる素材のフェンスとの組み合わせ施工やデザイン統一のご提案も承っております。専門スタッフが丁寧に対応いたしますので、初めての方も安心してお任せください。豊富な素材とデザイン、丁寧なサポートで、お客様の理想のフェンス選びを全力でお手伝いさせていただきます。ぜひ当ショップで、長く愛用できる、お気に入りのフェンスを見つけてください。
素材で選ぶ
売れ筋人気ランキングRANKING


素材で選ぶ
専門スタッフおすすめ商品FEATURED PRODUCTS
日本全国のお客様からご注文をいただき、多くのお客様に選ばれた大人気素材のフェンスや、
多数の商品を取り扱う当店が今おすすめしたい厳選ポストをご紹介します。
シンプレオフェンスYL1型と
同デザインの傾斜地用フェンス!

YKKap シンプレオフェンスYL1K型 はYL1型の傾斜地対応タイプで連結も可能です。こちらも風が抜けるルーバーフェンスです。
詳しく見る素材で選ぶ
おすすめメーカーRECOMMEND MAKER
LIXIL
エクステリア商材といえばLIXILと言われるほど大手のアルミメーカー。LIXILは、2011年に国内の主要な建材・設備機器メーカー、トステム、INAX 、新日軽、サンウエーブ工業、東洋エクステリアの5社が統合して誕生しました。
LIXILのフェンスを見るYKKap
窓やファスナーでおなじみの大手アルミメーカーのYKKapは、材料から製造設備、製品までを自社で開発・生産する「一貫生産思想」に基づき、ねじ一本までこだわって自社内で設計・製造するというこだわりが魅力です。
YKKapのフェンスを見る三協アルミ
LIXILやYKKapと比べると認知度は低いかもしれませんが、大手アルミメーカーの三協アルミは、得意なアルミ形材を生かしたポストを製造しています。製造・組立まで富山県で行っており、国内製造の安心クオリティが魅力です。
三協アルミのフェンスを見る四国化成
門扉・フェンス・カーポートなど、エクステリア商材と壁材・舗装材の大手メーカーです。Gマーク(グッドデザイン賞)を受賞した伸縮構造のアコーディオン門扉など独創的な製品の製造を行っています。
四国化成のフェンスを見る

エクステリア
売れ筋人気ランキングRANKING
当店では今人気のシンプルでお洒落なポストやお庭を華やかに演出するお庭の水道には欠かせないおしゃれな立水栓など多数ご用意がございます。
また、近年人気急上昇中の安心、安全な一流メーカーのモダンで美しい宅配ボックスも多数ご用意しておりますので是非ご検討してみて下さい。
-
1位
パナソニック
郵便ポスト クリアスFF
13,400円(税込)
-
2位
ユニソン
スプレスタンド60ソリッド 蛇口2個セット(シルバー)
27,360円(税込)
-
3位
三協アルミ
郵便ポスト SWEポスト
21,950円(税込)
-
4位
ユニソン
スプレスタンド60ソリッド 蛇口2個セット + シャインパン
39,780円(税込)
-
5位
サンガーデンエクステリア
二層板表札【サイズ:120×30mm】
960円(税込)
-
6位
サンガーデンエクステリア
シンプルポストユニット 1型 照明なし本体 T13型ポスト(簡易錠) セット 上入れ前出し
22,600円(税込)
-
7位
サンガーデンエクステリア
タイル表札 TiNa ティナ
7,500円(税込)
-
8位
[ブランド名]
宅配ボックス コンボ ミドルタイプ本体 後出しFR
53,970円(税込)