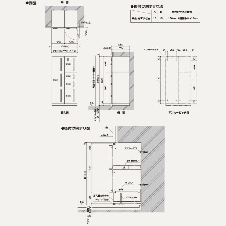
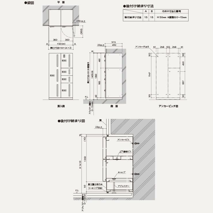
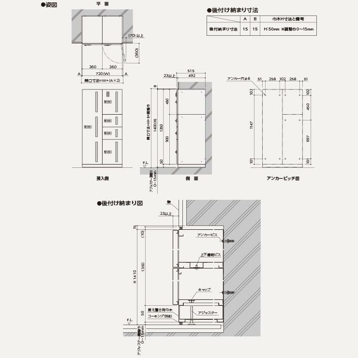
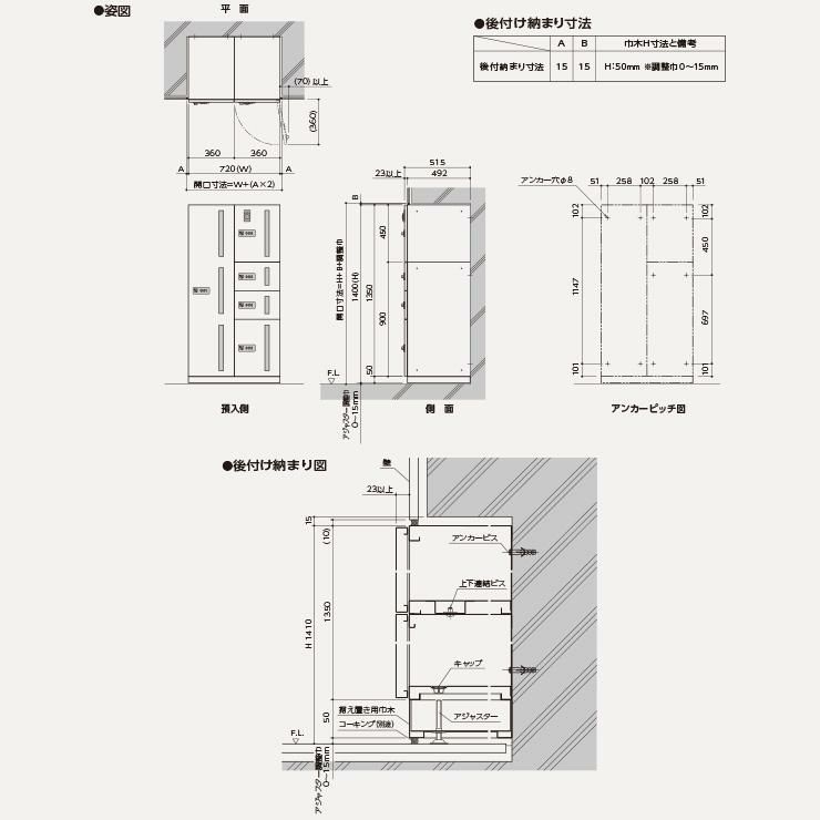
郵便ポストPOST BOX
ポスト 機能門柱の事なら「サンガーデンエクステリア」にお任せください!プロ用の壁付け(壁掛け)や埋め込みタイプの物から、簡易的に使用できる置き型の物まで、プロ用のエクステリア商品を数多く取り扱ってきたサンガーデンだから実現できた驚きの品ぞろえと価格設定で笑顔を届けます!ホームセンター扱いきれないおしゃれな郵便ポストや、最近はやりのシックでシンプルな機能門柱や機能ポールなど、圧倒的なボリュームからお好きな商品を選べます。また、デザインだけでなく、鍵の種類も多彩で、人気のダイヤル錠はもちろん、シリンダー錠やプッシュ錠、最新のカードキー仕様まで取り揃えております。壁付けポストが欲しい!宅配ボックスが欲しい!置き型ポストが欲しい!など様々なニーズにお応えできるよう、多彩な条件や検索機能をご用意いたしました。「欲しかったポストや機能門柱がきっと見つかる」日本一の通販サイトを目指しています!
郵便ポスト
売れ筋人気ランキングRANKING
ポストを
条件で絞り込んで検索SEARCH
郵便ポスト
専門スタッフおすすめ商品FEATURED PRODUCTS
日本全国のお客様からご注文をいただき、多くのお客様に選ばれた大人気郵便ポストや、
多数の商品を取り扱う当店が今おすすめしたい厳選ポストをご紹介。
「ポストの種類が多すぎて迷ってしまう・・・」という方は、参考としてぜひご覧ください!
様々な物件に対応できる鉄板の
ポストをお探しならこれ!
Panasonic クリアスFF ポストなら、シンプルかつコンパクトな容姿ながら、中身が濡れにくい樋を設けた特殊な構造に、防犯性に優れたダイヤル錠搭載で隙のない一品です。無駄のないポストのフォルムは集合住宅で並べて使用しても美しいポストです。
詳しく見るトレンドのシンプルで
美しいポスト!
シンプルモダン住宅にぴったりの郵便ポストをお探しならこれ!三協アルミ SWE-1型 ポストは、シンプルで美しい容姿が魅力のポストですが、厚手のカタログも投函できる大容量とプッシュ錠搭載で隙のない一品です。アルミの色味を生かした形材色とアクセントに木調色を追加したタイプもあり対応力抜群です。
詳しく見る洗練されたデザインが空間に
溶け込むスリムポスト!
住宅をおしゃれに飾りたい方におすすめの郵便ポスト!TOYO EXTY(エクティ) ポストは、シンプルなのに洗練されたスタイリッシュなデザインが魅力のスリムな郵便ポストです。シンプルなのにハイセンスな高級感漂う容姿は一度見ていただければ納得していただけること間違いなし!
詳しく見る支持され続ける根強い人気の
ボビポスト!
フィンランド生まれの北欧デザインが魅力の郵便ポスト!セキスイデザインワークス bobi(ボビ) ポストは、フィンランドの「bobi社」から輸入した大人気の郵便ポストです。ボビポスト特有の「長方形に半円を加えた特徴的なフォルム」は、ふんわりと丸く積もった雪からヒントを得ています。
詳しく見るワンポイントになる高級感漂う
郵便ポスト!
こだわりが光るスタイリッシュで美しい郵便ポスト!UNISON クルムII ポストは、前面にアーチ状の取っ手をあしらった郵便ポストです。簡易ロックとダイヤル錠を使い分けられるワンランク上の機能も魅力の一つです。
詳しく見るリゾートを連想させる
カジュアルスタイル!
自然に溶け込むナチュラル&カジュアルスタイルの郵便ポスト!オンリーワンクラブ Feel II(フィール2) ポストは、新しいのにどこか懐かしさを感じるネオクラシックデザインの郵便ポストです。設置するだけで住まいのランドマークのように存在感を醸し出し印象に残る住宅になります。
詳しく見る郵便ポスト
おすすめメーカーRECOMMEND MAKER
LIXIL
エクステリア商材といえばLIXILと言われるほど大手のアルミメーカー。LIXILは、2011年に国内の主要な建材・設備機器メーカー、トステム、INAX 、新日軽、サンウエーブ工業、東洋エクステリアの5社が統合して誕生しました。
LIXILのポストを見る
YKKap
窓やファスナーでおなじみの大手アルミメーカーのYKKapは、材料から製造設備、製品までを自社で開発・生産する「一貫生産思想」に基づき、ねじ一本までこだわって自社内で設計・製造するというこだわりが魅力です。
YKKapのポストを見る
三協アルミ
LIXILやYKKapと比べると認知度は低いかもしれませんが、大手アルミメーカーの三協アルミは、得意なアルミ形材を生かしたポストを製造しています。製造・組立まで富山県で行っており、国内製造の安心クオリティが魅力です。
三協アルミのポストを見る
Panasonic(パナソニック)
パナソニックといえば家電では?と思われる方もいらっしゃるかと思いますが、住宅設備も製造しており、持ち前の技術力でクオリティの高いポストを製造・開発しています。創業100周年を超えた国内最大級の「総合家電メーカー」です。
Panasonicのポストを見る
UNISON(ユニソン)
創業はブロックから始まったエクステリアメーカーですが、常に社会と向き合い、毎日の暮らしをより豊かにする、豊富なエクステリア商材を開発し続けています。フットワークの軽さを生かした魅力的なエクステリア商材が毎年誕生しています。
UNISONのポストを見る
NASTA(ナスタ)
ポストや宅配ボックスを中心に、非常に多くの建築金物を取り扱うメーカーです。グッドデザイン賞の受賞歴も多数あり、洗練されたデザインと使いやすい機能性を兼ね備えています。大手ショッピングサイトのAmazonとのコラボポストも製造しています。
NASTAのポストを見る郵便ポストを
選ぶ際のポイントHOW TO
郵便ポストを選ぶ際のポイントは、大きく分けて「設置場所(設置方法)」「機能(セキュリティ)」「デザイン(見た目)」があげられます。選ぶ際にどこを重視するかは人それぞれですが、スムーズに選びたい場合は「設置場所」「機能」「デザイン」の順で選ぶと最適なものを見つけやすい傾向があります。設置場所に融通が利く場合は、機能を重視するかデザインを重視するか優先順位を決めてお選びください。
-
設置場所・設置方法
POINT01
設置方法としては大きく分けて「壁付け(壁掛け)施工」「壁埋め込み施工」「独立ポール建て施工」「据え置き」の4つがあります。
- 外壁や既存の門塀に取り付ける場合は「壁付け(壁掛け)施工」タイプがおすすめです。
- 門塀を1から用意する場合、空間を有効的に使える「壁埋め込み施工」タイプがおすすめです。
- 動線を意識した施工をお考えの方や外壁に穴をあけたくない場合は「独立ポール建て施工」タイプがおすすめです。
- 施工を行いたくない方やしっかり決まるまでの仮の物をお探しの場合は「据え置き」タイプがおすすめです。
-
玄関周り・住宅全体のテイストを考慮
POINT02
ポストは住宅を彩るアイテムの一つです。住宅全体のテイストを考慮せずに選ぶとせっかくのおしゃれな住宅が台無しに・・・という事も多々あります。
シンプルモダン住宅であれば「シンプルなポスト」、自然豊かな温かみのある住宅であれば「木調色などのナチュラルなポスト」、レンガや塗り壁を生かした南欧風住宅であれば「手作り感や温かみを感じるポスト」、洋風住宅であれば「アンティーク調のポスト」など、イメージに合わせたポストを選ぶことで、住宅になじみやすくなります。 -
郵便ポストの構造・サイズ
POINT03
郵便ポストには投函・取出しを行う構造として「前入れ前出し」「前入れ後出し」「前入れ横出し」「上入れ上出し」「上入れ前出し」「上入れ後出し」など、多くのバリエーションがありますが、投函物を取り出す際どこから取り出すのかにより、構造が大きく変化します。ポストの設置場所に余裕がある方は問題ありませんが、狭小地では「前入れ前出し」や「上入れ前出し」など、前面部で操作が完結するポストが一番スリムでおすすめです。
また「前入れ後出し」などのポストは、取出し部が住宅側にあり、ポストの前側に回り込んで投函物を取り出す必要がないので、設置場所に余裕がある方は動線に合わせた仕様のポストを選ぶと非常に便利です。 -
セキュリティ(防犯面)
POINT04
郵便ポストには防犯面を考慮した「鍵付き」の商品が用意されています。中には「鍵なし」仕様のポストもありますが、大きく分けると鍵の持ち運びが不要な「ダイヤル錠」「プッシュ錠」仕様、鍵の持ち運びが必要な「シリンダー錠」「カードキー(電子キー)」仕様があります。
「ダイヤル錠」や「プッシュ錠」搭載のポストは、ポスト自体で操作が可能で、鍵の持ち運びが不要なので人気が高いですが、開錠番号をわすれてしまうと開けられなくなってしまう事があります。逆に「シリンダー錠」や「カードキー(電子キー)」搭載のポストは、鍵の持ち運びが必要になりますが、開錠番号を覚える必要はありません。ご自身の使用方法に合わせて最適な機能を選びましょう。 -
宅配ボックス・照明・表札を含めた総合的な機能
POINT05
門柱にポスト・宅配ボックス・表札・照明を搭載した、機能門柱(機能ポール)という商品もあります。こちらの機能門柱(機能ポール)はエントランスに必要な機能を一カ所に集約できるメリットがあります。ポストだけでなく、宅配ボックス・表札・照明も検討している方は、機能門柱(機能ポール)を検討いただくと良いかもしれません。
エクステリア
売れ筋人気ランキングRANKING
当店では今人気のシンプルでお洒落なポストやお庭を華やかに演出するお庭の水道には欠かせないおしゃれな立水栓など多数ご用意がございます。
また、近年人気急上昇中の安心、安全な一流メーカーのモダンで美しい宅配ボックスも多数ご用意しておりますので是非ご検討してみて下さい。
-
1位
パナソニック
郵便ポスト クリアスFF
13,400円(税込)
-
2位
ユニソン
スプレスタンド60ソリッド 蛇口2個セット(シルバー)
27,360円(税込)
-
3位
三協アルミ
郵便ポスト SWEポスト
21,950円(税込)
-
4位
ユニソン
スプレスタンド60ソリッド 蛇口2個セット + シャインパン
39,780円(税込)
-
5位
サンガーデンエクステリア
二層板表札【サイズ:120×30mm】
960円(税込)
-
6位
サンガーデンエクステリア
シンプルポストユニット 1型 照明なし本体 T13型ポスト(簡易錠) セット 上入れ前出し
22,600円(税込)
-
7位
サンガーデンエクステリア
タイル表札 TiNa ティナ
7,500円(税込)
-
8位
[ブランド名]
宅配ボックス コンボ ミドルタイプ本体 後出しFR
53,970円(税込)

