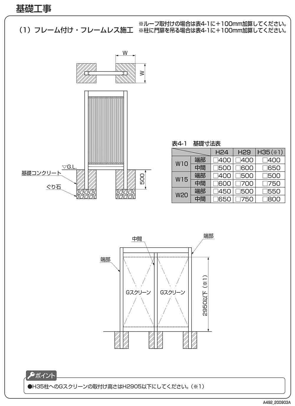
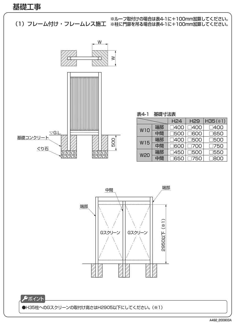
メーカーで選ぶChoose by Manufacturer
理想のフェンスがきっと見つかる人気メーカーの豊富なラインナップ!アルミフェンス・アメリカンフェンス・PCフェンス・公共向けフェンスまで勢揃いお庭や外構の理想を形にするフェンスをお探しですか?当ショップでは、リクシル、YKKap、三協アルミ、四国化成といった国内有数の信頼できるエクステリアメーカーのエクステリアフェンスを豊富に取り揃えております。シンプルでスタイリッシュなアルミフェンスをはじめ、個性を演出するアメリカンフェンス、高強度で耐久性に優れたPCフェンス、公共施設や商業施設にも対応可能なハイセキュリティフェンスまで、様々な種類をご用意。お客様のニーズにぴったりのフェンスがきっと見つかります。メーカー別に選べるのはもちろん、カラー・高さ・通気性・施工方法などデザインや形状も豊富にご用意。お庭の雰囲気に合わせたデザイン、目隠し・境界線・防犯対策といった用途に応じた機能性のあるフェンスなど、様々な視点からお選びいただけます。豊富なラインナップの中から、きっと理想のフェンスが見つかるはずです。どのフェンスを選んだら良いか迷ってしまう…そんなお客様もご安心ください。当ショップでは、デザインや形状だけでなく、価格帯、そして多くのお客様に選ばれている人気ランキングからもフェンスをお選びいただけます。それぞれのフェンスの特徴やメリットを詳しくご紹介しておりますので、比較検討しながら、理想のフェンスを見つけてください。商品の詳細な情報はもちろん、DIY設置方法・基礎工事不要モデル・組み合わせ例など設置や活用に関するご提案も承っております。専門のスタッフが、お客様の疑問やご要望に丁寧にお答えいたしますので、初めてのフェンス選びでも安心してお任せください。豊富な品揃えと丁寧なサポートで、お客様の理想のフェンス選びを全力でお手伝いさせていただきます。ぜひ当ショップで、長く愛用できる、お気に入りのフェンスを見つけてください。
メーカーで選ぶ
売れ筋人気ランキングRANKING


メーカーで選ぶ
専門スタッフおすすめ商品FEATURED PRODUCTS
日本全国のお客様からご注文をいただき、多くのお客様に選ばれた大人気のメーカーフェンスや、
多数の商品を取り扱う当店が今おすすめしたい厳選ポストをご紹介します。
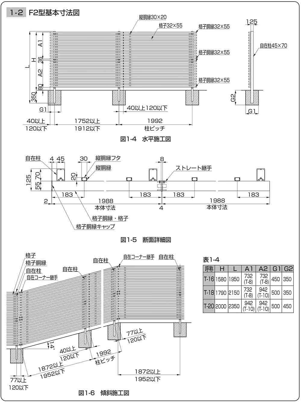
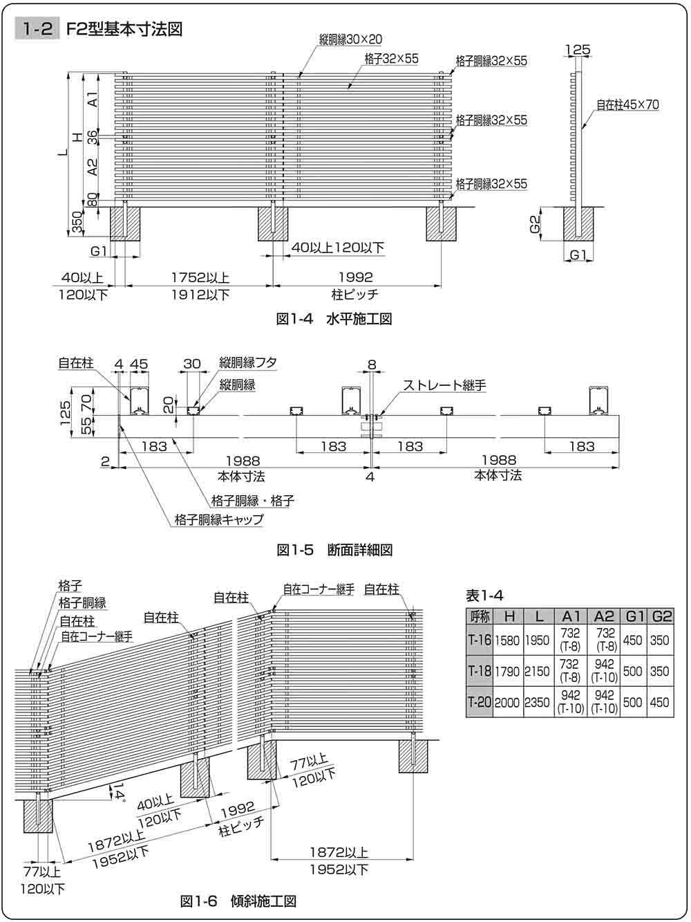
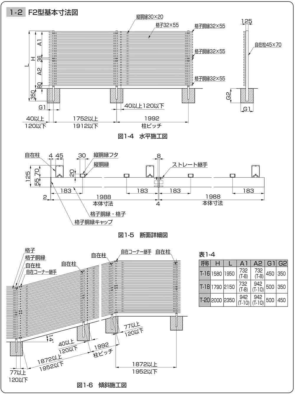
シンプレオフェンスYL1型と
同デザインの傾斜地用フェンス!

YKKap シンプレオフェンスYL1K型 はYL1型の傾斜地対応タイプで連結も可能です。こちらも風が抜けるルーバーフェンスです。
詳しく見るメーカーで選ぶ
おすすめメーカーRECOMMEND MAKER
LIXIL
エクステリア商材といえばLIXILと言われるほど大手のアルミメーカー。LIXILは、2011年に国内の主要な建材・設備機器メーカー、トステム、INAX 、新日軽、サンウエーブ工業、東洋エクステリアの5社が統合して誕生しました。
LIXILのフェンスを見るYKKap
窓やファスナーでおなじみの大手アルミメーカーのYKKapは、材料から製造設備、製品までを自社で開発・生産する「一貫生産思想」に基づき、ねじ一本までこだわって自社内で設計・製造するというこだわりが魅力です。
YKKapのフェンスを見る三協アルミ
LIXILやYKKapと比べると認知度は低いかもしれませんが、大手アルミメーカーの三協アルミは、得意なアルミ形材を生かしたポストを製造しています。製造・組立まで富山県で行っており、国内製造の安心クオリティが魅力です。
三協アルミのフェンスを見る四国化成
門扉・フェンス・カーポートなど、エクステリア商材と壁材・舗装材の大手メーカーです。Gマーク(グッドデザイン賞)を受賞した伸縮構造のアコーディオン門扉など独創的な製品の製造を行っています。
四国化成のフェンスを見る

エクステリア
売れ筋人気ランキングRANKING
当店では今人気のシンプルでお洒落なポストやお庭を華やかに演出するお庭の水道には欠かせないおしゃれな立水栓など多数ご用意がございます。
また、近年人気急上昇中の安心、安全な一流メーカーのモダンで美しい宅配ボックスも多数ご用意しておりますので是非ご検討してみて下さい。
-
1位
パナソニック
郵便ポスト クリアスFF
13,400円(税込)
-
2位
ユニソン
スプレスタンド60ソリッド 蛇口2個セット(シルバー)
27,360円(税込)
-
3位
三協アルミ
郵便ポスト SWEポスト
21,950円(税込)
-
4位
ユニソン
スプレスタンド60ソリッド 蛇口2個セット + シャインパン
39,780円(税込)
-
5位
サンガーデンエクステリア
二層板表札【サイズ:120×30mm】
960円(税込)
-
6位
サンガーデンエクステリア
シンプルポストユニット 1型 照明なし本体 T13型ポスト(簡易錠) セット 上入れ前出し
22,600円(税込)
-
7位
サンガーデンエクステリア
タイル表札 TiNa ティナ
7,500円(税込)
-
8位
[ブランド名]
宅配ボックス コンボ ミドルタイプ本体 後出しFR
53,970円(税込)