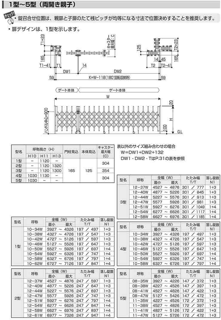
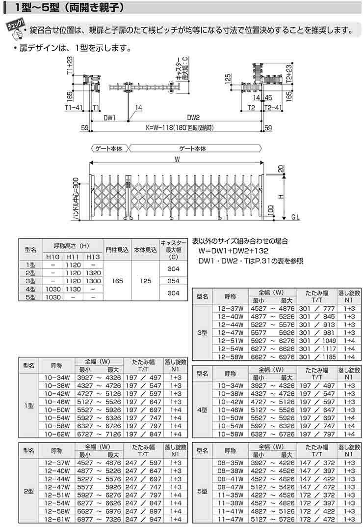
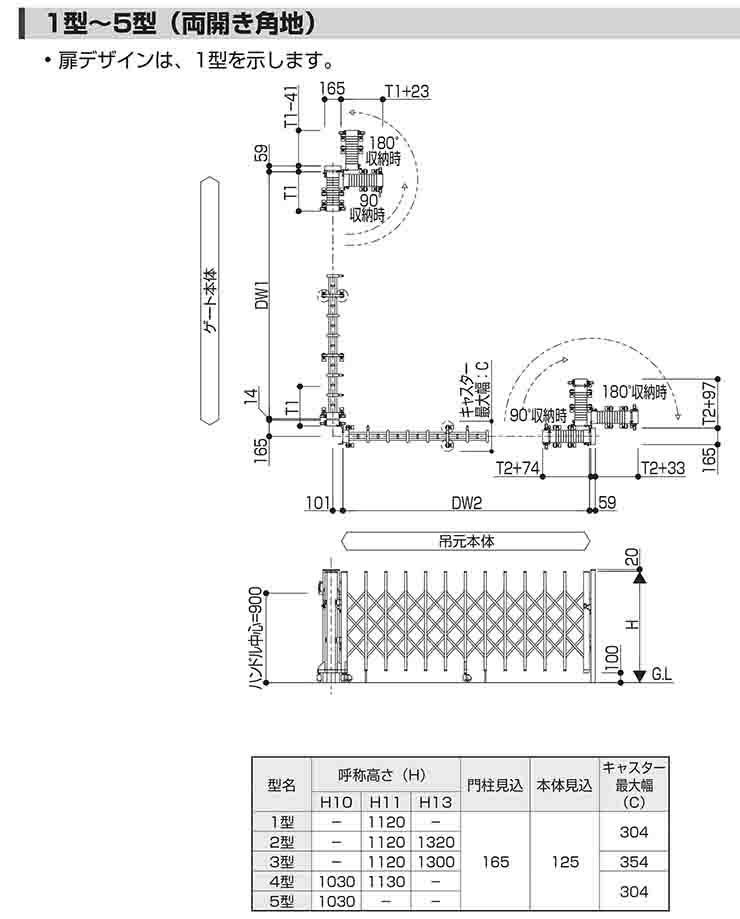
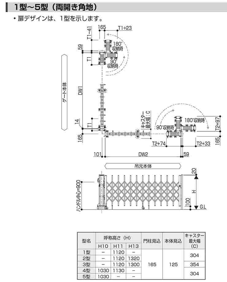
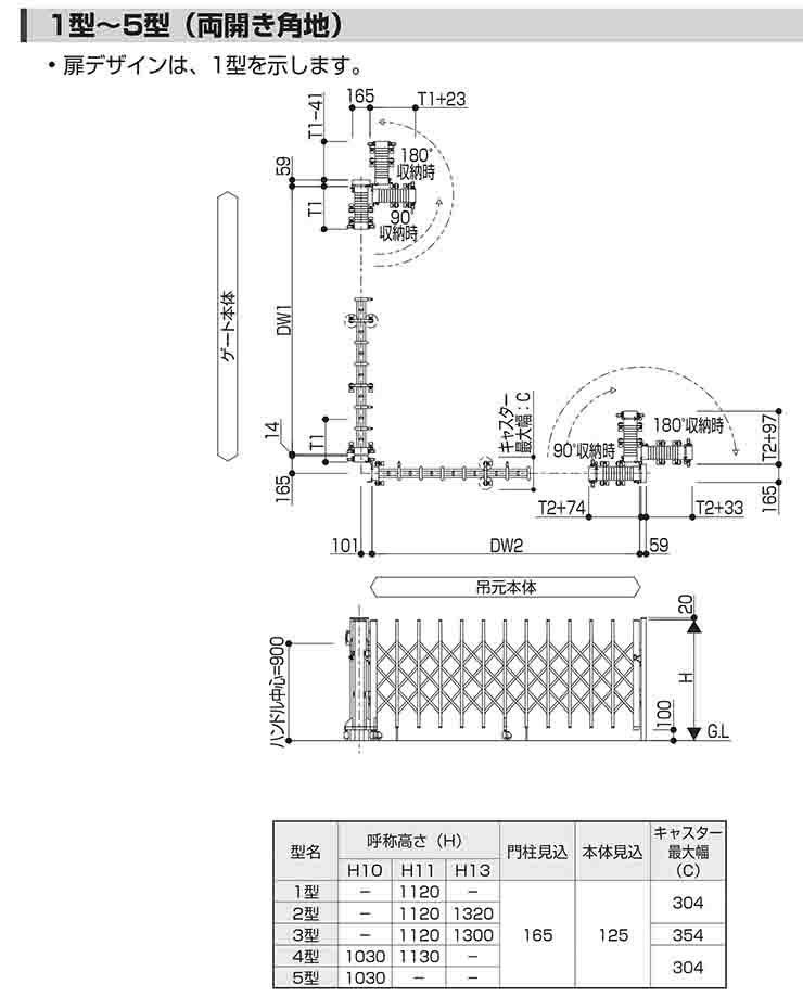
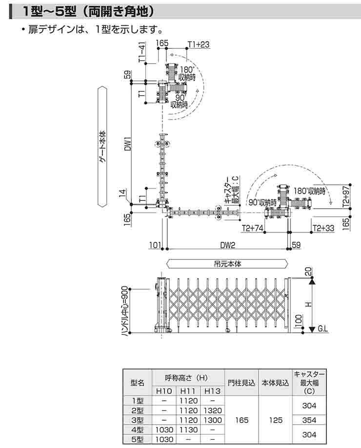
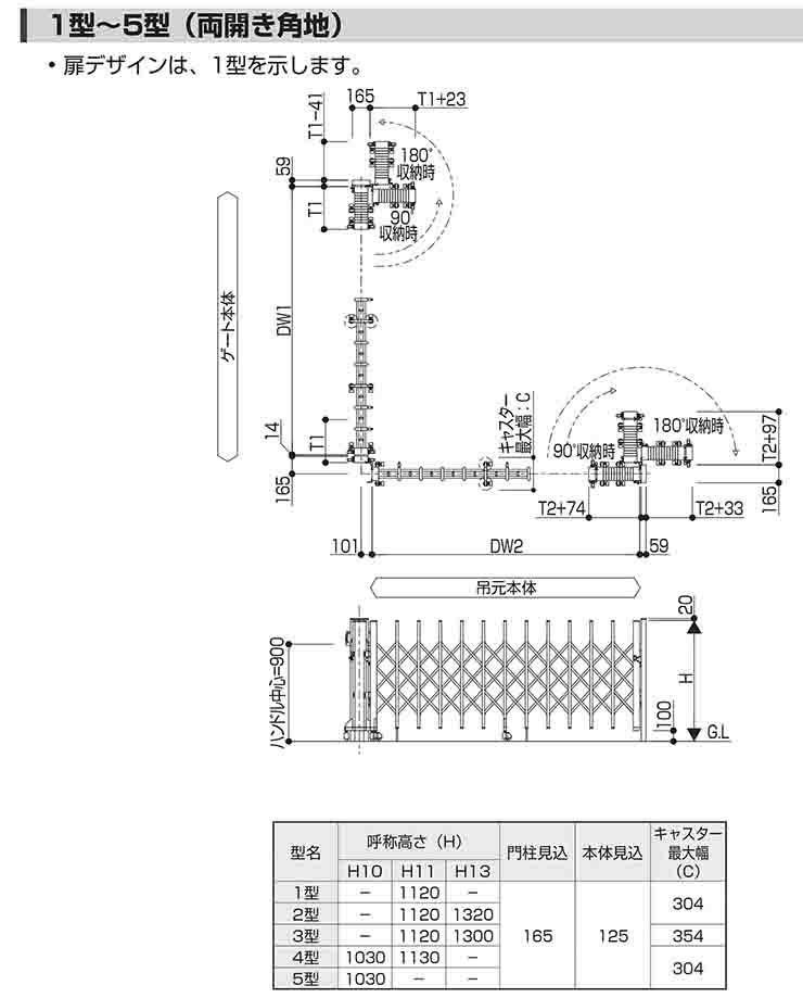
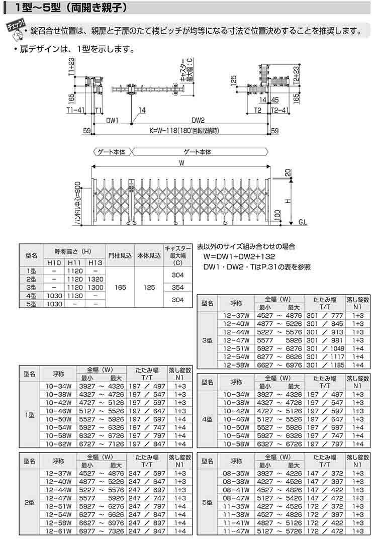
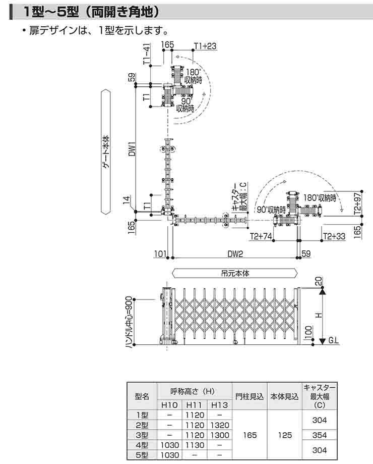
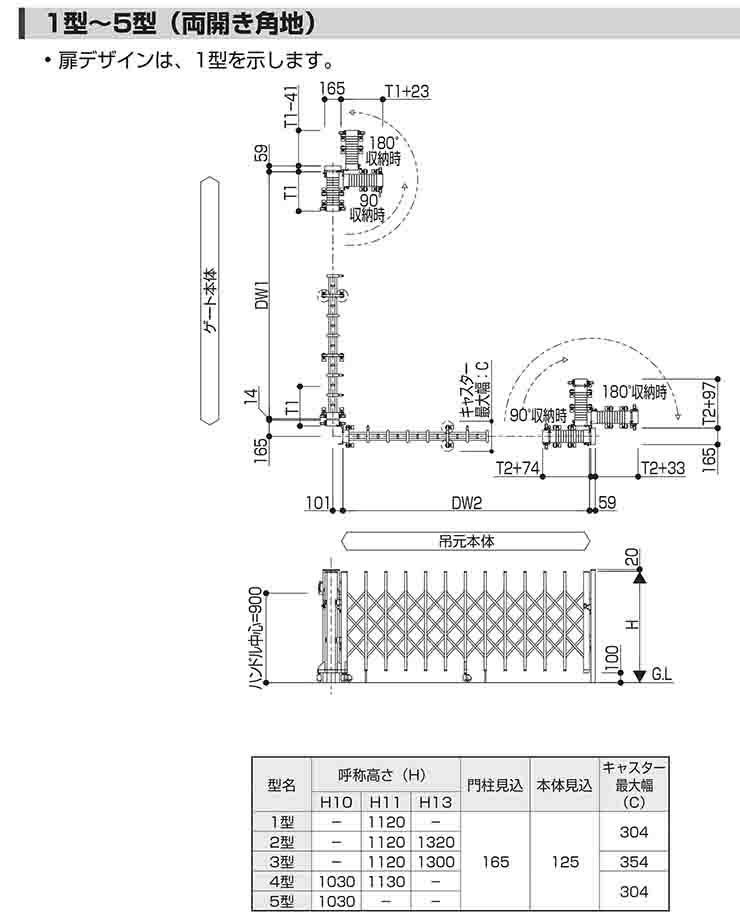
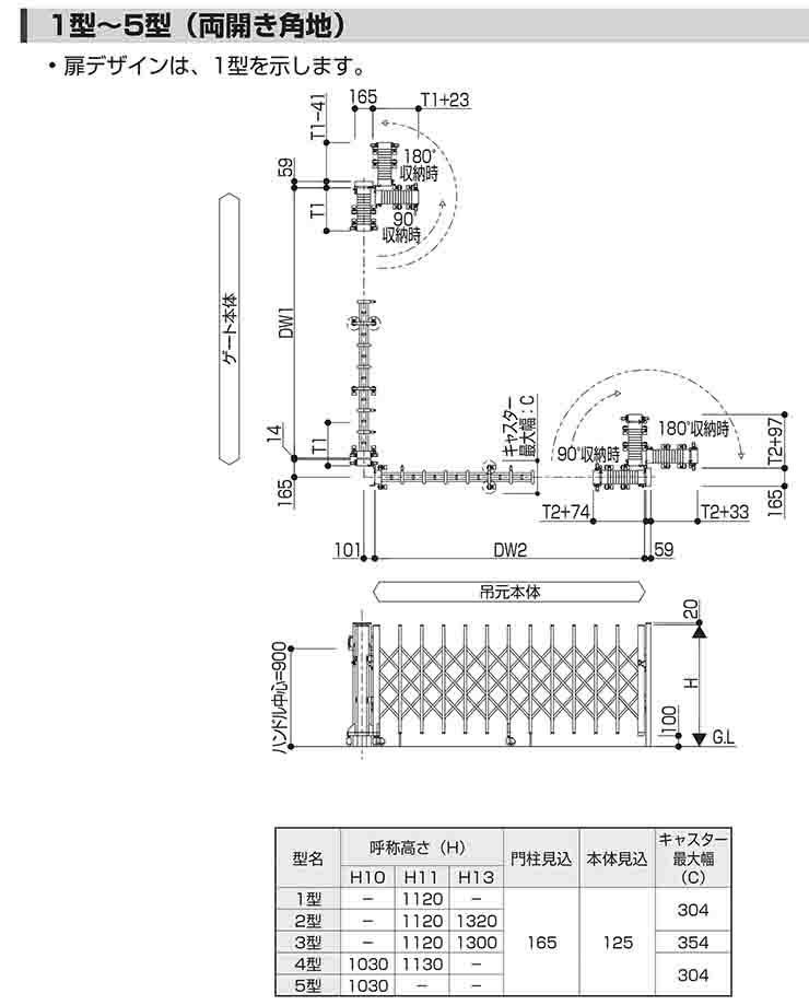
カーテンゲートCurtain gate
駐車場の出入り口の防犯対策や、不審者の侵入防止に役立つ伸縮門扉をお探しですか?「サンガーデンエクステリア本店」では、防犯性・省スペース性・デザイン性を兼ね備えた多種多様な伸縮門扉を豊富に取り揃えております。必要な時だけ展開し、使わない時はコンパクトに収納できるため、限られた駐車スペースや住宅の間口にも対応可能で邪魔になりません。当店の伸縮門扉は、アルミ製・ステンレス製など耐久性に優れた素材を使用しており、風雨や日差しにも強く、長期間にわたってご使用いただけます。また、デザインも豊富で、シンプルなものから、おしゃれな装飾が施されたものまで、住まいの外観や駐車場の雰囲気に合わせてお選びいただけます。どの伸縮門扉を選べば良いか迷った際は、ぜひ当店の伸縮門扉売れ筋ランキングをご覧ください。多くのお客様にご支持いただいている人気の伸縮門扉をご紹介しており、設置場所や用途に合わせて最適な商品を見つけるヒントになるはずです。また、サイズや素材、機能など、比較しやすい商品情報・スペック表も掲載しておりますので、比較検討も簡単です。伸縮門扉の設置は、ご自身で行える簡易的なものから、専門業者による本格的な工事が必要なものまで様々です。当店では、お客様のニーズに合わせて、片開き・両開き・片引き・両引きなどのタイプからご提案いたします。また、設置に関するご相談も承っておりますので、ご不明な点があればお気軽にお問い合わせください。「サンガーデンエクステリア本店」で、機能性とデザイン性を両立した伸縮門扉を見つけて、駐車場をより安全で快適な空間にしませんか?防犯対策はもちろん、外構やエクステリアのアクセントとしても活躍する伸縮門扉が、きっと見つかるはずです。ぜひ一度、当店のラインナップをご覧ください。
エクステリア
売れ筋人気ランキングRANKING
当店では今人気のシンプルでお洒落なポストやお庭を華やかに演出するお庭の水道には欠かせないおしゃれな立水栓など多数ご用意がございます。
また、近年人気急上昇中の安心、安全な一流メーカーのモダンで美しい宅配ボックスも多数ご用意しておりますので是非ご検討してみて下さい。
-
1位
パナソニック
郵便ポスト クリアスFF
13,400円(税込)
-
2位
ユニソン
スプレスタンド60ソリッド 蛇口2個セット(シルバー)
27,360円(税込)
-
3位
三協アルミ
郵便ポスト SWEポスト
21,950円(税込)
-
4位
ユニソン
スプレスタンド60ソリッド 蛇口2個セット + シャインパン
39,780円(税込)
-
5位
サンガーデンエクステリア
二層板表札【サイズ:120×30mm】
960円(税込)
-
6位
サンガーデンエクステリア
シンプルポストユニット 1型 照明なし本体 T13型ポスト(簡易錠) セット 上入れ前出し
22,600円(税込)
-
7位
サンガーデンエクステリア
タイル表札 TiNa ティナ
7,500円(税込)
-
8位
[ブランド名]
宅配ボックス コンボ ミドルタイプ本体 後出しFR
53,970円(税込)

