2点セットtwo-piece set
機能門柱2点セットは「ポール+表札」や「ポール+ポスト」など、必要最低限の機能をシンプルにまとめた構成が魅力です。ミニマルなデザインを好む方や、設置コストを抑えたい方にぴったりのスタイルです。戸建て住宅の第一印象を決める門柱は、デザイン性だけでなく、使い勝手や耐久性も重要なポイントです。当店では、お客様の理想に合った門柱選びをサポートするため、デザインの選び方から機能性の比較、設置時の注意点まで、専門的な知識を分かりやすくご案内いたします。各エクステリア商品の中でも特に人気のある門柱を豊富にラインナップし、シンプルモダンからナチュラルテイストまで、様々なデザインをご用意しておりますので、お庭の雰囲気に調和する機能門柱がきっと見つかります。例えば、洗練されたスタイリッシュな空間を演出したい方には、スタイリッシュなモノトーンカラーや、直線的なデザインの門柱がおすすめ。一方、温かみのある雰囲気を好む方には、木目調や自然素材を活かしたナチュラルなデザインをご提案いたします。2点セットは、表札やポストといった基本的な要素を備えつつ、設置の手間やコストを抑えられるのが特長です。玄関まわりをすっきりと整えたい方に最適で、インターホンとの組み合わせにより来客対応もスムーズに。防犯面でも安心してご利用いただけます。使用されている素材は、耐候性や耐久性に優れており、シンプルながらも長期間きれいな状態を維持することが可能です。日々のメンテナンス負担も少なく、安心してお使いいただけます。コンパクトで洗練された門柱をお探しの方は、ぜひ当店の2点セットから理想の一台を見つけてください。
2点セット
売れ筋人気ランキングRANKING
2点セット
専門スタッフおすすめ商品FEATURED PRODUCTS
日本全国のお客様からご注文をいただき、多くのお客様に選ばれた大人気の機能門柱・ポールや、
多数の商品を取り扱う当店が今おすすめしたい厳選ポストをご紹介します。
様々な物件に対応できるシンプルな
機能ポールをお探しならこれ!
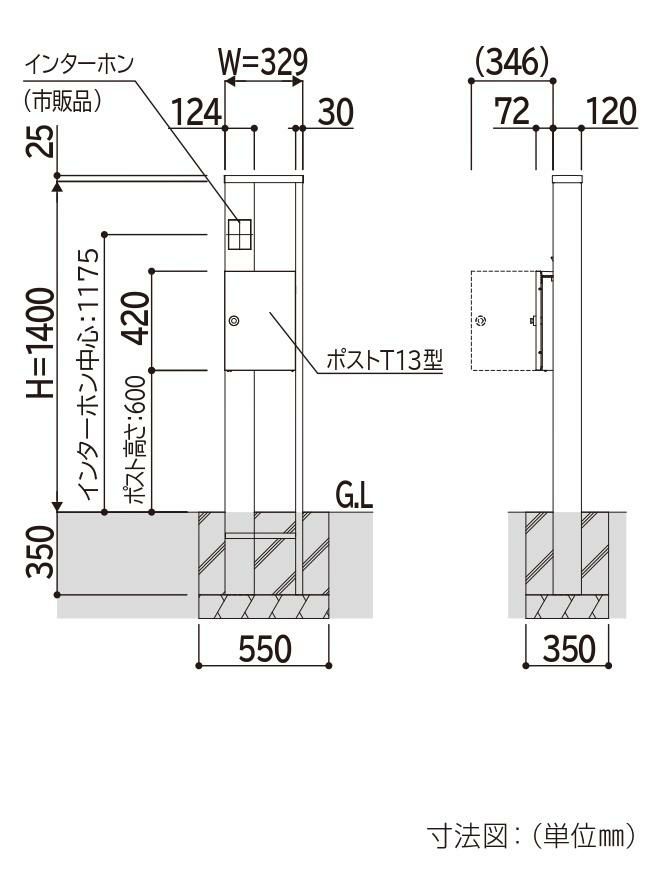
サンガーデンエクステリア シンプルポストユニット 1型 なら、照明の有無に加え、様々なポストセットもご用意しております。カスタマイズ性も高くお好きなポストの取り付けも可能です。
詳しく見る様々な物件に対応できる
木調の機能ポールをお探しならこれ!
サンガーデンエクステリア デザインポストユニット 1型 なら、照明の有無に加え、様々なポストセットもご用意しております。カスタマイズ性も高くお好きなポストの取り付けも可能です。
詳しく見る高機能でスタイリッシュな
機能門柱をお探しならこれ!
ユニソン ミース はポストや宅配ボックスがすっきり美しく搭載されたスタイリッシュな機能門柱です。インターホン子機や表札も取付可能で機能面も間違いなし!
詳しく見る通販が当たり前になった現代に
配慮した高機能な機能門柱!
LIXIL 機能門柱FF はポストと宅配ボックスが標準装備されており、宅配ボックス部はありそうでなかったフラップ付きで受け取り後も追加で荷物の受け取りが可能です!
詳しく見るスリムな宅配ボックス付きの
機能門柱をお探しの方におすすめ!
LIXIL 機能門柱FT はすっきりとしたフォルムに郵便ポストを標準装備。同じデザインの宅配ボックス付きからも選べ、インターホン子機や表札の取付も可能です!
詳しく見る存在感のある機能門柱を
お探しの方におすすめ!
ディーズガーデン ルアンA は普通の機能門柱では満足できない方におすすめの、ありそうでなかった斜めデザインのスタイリッシュな機能門柱です。設置すればワンポイントになり目を引く事間違いなし!
詳しく見る2点セット
おすすめメーカーRECOMMEND MAKER
LIXIL
エクステリア商材といえばLIXILと言われるほど大手のアルミメーカー。LIXILは、2011年に国内の主要な建材・設備機器メーカー、トステム、INAX 、新日軽、サンウエーブ工業、東洋エクステリアの5社が統合して誕生しました。
LIXILの2点セットを見る
YKKap
窓やファスナーでおなじみの大手アルミメーカーのYKKapは、材料から製造設備、製品までを自社で開発・生産する「一貫生産思想」に基づき、ねじ一本までこだわって自社内で設計・製造するというこだわりが魅力です。
YKKapの2点セットを見る
三協アルミ
LIXILやYKKapと比べると認知度は低いかもしれませんが、大手アルミメーカーの三協アルミは、得意なアルミ形材を生かしたポストを製造しています。製造・組立まで富山県で行っており、国内製造の安心クオリティが魅力です。
三協アルミの2点セットを見る
Panasonic(パナソニック)
パナソニックといえば家電では?と思われる方もいらっしゃるかと思いますが、住宅設備も製造しており、持ち前の技術力でクオリティの高いポストを製造・開発しています。創業100周年を超えた国内最大級の「総合家電メーカー」です。
Panasonicの2点セットを見る
UNISON(ユニソン)
創業はブロックから始まったエクステリアメーカーですが、常に社会と向き合い、毎日の暮らしをより豊かにする、豊富なエクステリア商材を開発し続けています。フットワークの軽さを生かした魅力的なエクステリア商材が毎年誕生しています。
UNISONの2点セットを見る
OnlyOneClub(オンリーワンクラブ)
オンリーワンクラブはエクステリア商品を取り扱うメーカーが加盟し、集約した商品をカタログに掲載しているブランドメーカーです。大手では製造コストなどの関係で難しい個性豊かなデザインの商品が多数用意されています。
OnlyOneClubの2点セットを見る
エクステリア
売れ筋人気ランキングRANKING
当店では今人気のシンプルでお洒落なポストやお庭を華やかに演出するお庭の水道には欠かせないおしゃれな立水栓など多数ご用意がございます。
また、近年人気急上昇中の安心、安全な一流メーカーのモダンで美しい宅配ボックスも多数ご用意しておりますので是非ご検討してみて下さい。
-
1位
パナソニック
郵便ポスト クリアスFF
13,400円(税込)
-
2位
ユニソン
スプレスタンド60ソリッド 蛇口2個セット(シルバー)
27,360円(税込)
-
3位
三協アルミ
郵便ポスト SWEポスト
21,950円(税込)
-
4位
ユニソン
スプレスタンド60ソリッド 蛇口2個セット + シャインパン
39,780円(税込)
-
5位
サンガーデンエクステリア
二層板表札【サイズ:120×30mm】
960円(税込)
-
6位
サンガーデンエクステリア
シンプルポストユニット 1型 照明なし本体 T13型ポスト(簡易錠) セット 上入れ前出し
22,600円(税込)
-
7位
サンガーデンエクステリア
タイル表札 TiNa ティナ
7,500円(税込)
-
8位
[ブランド名]
宅配ボックス コンボ ミドルタイプ本体 後出しFR
53,970円(税込)

