エクステリア専門相談サポート窓口
0572-26-8050

受付時間平日 9:00〜17:00

3点セット

3点セットthree-piece set

機能門柱3点セットは「ポール+ポスト+表札」や「ポール+宅配ボックス+ポスト」など、実用性とデザイン性のバランスに優れた構成が特長です。日常の使い勝手を重視しながらも、見た目にこだわりたい方におすすめのスタンダードタイプです。戸建て住宅の第一印象を決める門柱は、デザイン性だけでなく、使い勝手や耐久性も重要なポイントです。当店では、お客様の理想に合った門柱選びをサポートするため、デザインの選び方から機能性の比較、設置時の注意点まで、専門的な知識を分かりやすくご案内いたします。各エクステリア商品の中でも特に人気のある門柱を豊富にラインナップし、シンプルモダンからナチュラルテイストまで、様々なデザインをご用意しておりますので、お庭の雰囲気に調和する機能門柱がきっと見つかります。例えば、洗練されたスタイリッシュな空間を演出したい方には、スタイリッシュなモノトーンカラーや、直線的なデザインの門柱がおすすめ。一方、温かみのある雰囲気を好む方には、木目調や自然素材を活かしたナチュラルなデザインをご提案いたします。3点セットは、ポストや表札に加えて宅配ボックスを組み合わせるなど、機能と実用性を両立。インターホンと連携することで、来客時の対応もスムーズになり、防犯面の安心感も向上します。日常的に使うアイテムだからこそ、素材には耐久性の高いものを採用しています。天候や経年変化にも強く、長期間にわたって美しい状態を維持できます。毎日の使いやすさを大切にしたい方は、当店の3点セットからライフスタイルに合った門柱をぜひお選びください。

3点セット
売れ筋人気ランキングRANKING

エクステリアのプロ専門スタッフが商品選びから施工の準備相談まで解決! 0572-26-8050 お問い合わせフォームはこちら
エクステリアのプロ専門スタッフが商品選びから施工の準備相談まで解決! 0572-26-8050 お問い合わせフォームはこちら

3点セット
おすすめメーカーRECOMMEND MAKER

LIXIL

LIXIL

エクステリア商材といえばLIXILと言われるほど大手のアルミメーカー。LIXILは、2011年に国内の主要な建材・設備機器メーカー、トステム、INAX 、新日軽、サンウエーブ工業、東洋エクステリアの5社が統合して誕生しました。

LIXILの3点セットを見る
YKKap

YKKap

窓やファスナーでおなじみの大手アルミメーカーのYKKapは、材料から製造設備、製品までを自社で開発・生産する「一貫生産思想」に基づき、ねじ一本までこだわって自社内で設計・製造するというこだわりが魅力です。

YKKapの3点セットを見る
三協アルミ

三協アルミ

LIXILやYKKapと比べると認知度は低いかもしれませんが、大手アルミメーカーの三協アルミは、得意なアルミ形材を生かしたポストを製造しています。製造・組立まで富山県で行っており、国内製造の安心クオリティが魅力です。

三協アルミの3点セットを見る
Panasonic(パナソニック)

Panasonic(パナソニック)

パナソニックといえば家電では?と思われる方もいらっしゃるかと思いますが、住宅設備も製造しており、持ち前の技術力でクオリティの高いポストを製造・開発しています。創業100周年を超えた国内最大級の「総合家電メーカー」です。

Panasonicの3点セットを見る
UNISON(ユニソン)

UNISON(ユニソン)

創業はブロックから始まったエクステリアメーカーですが、常に社会と向き合い、毎日の暮らしをより豊かにする、豊富なエクステリア商材を開発し続けています。フットワークの軽さを生かした魅力的なエクステリア商材が毎年誕生しています。

UNISONの3点セットを見る
OnlyOneClub(オンリーワンクラブ)

OnlyOneClub(オンリーワンクラブ)

オンリーワンクラブはエクステリア商品を取り扱うメーカーが加盟し、集約した商品をカタログに掲載しているブランドメーカーです。大手では製造コストなどの関係で難しい個性豊かなデザインの商品が多数用意されています。

OnlyOneClubの3点セットを見る
エクステリアのプロ専門スタッフが商品選びから施工の準備相談まで解決! 0572-26-8050 お問い合わせフォームはこちら
エクステリアのプロ専門スタッフが商品選びから施工の準備相談まで解決! 0572-26-8050 お問い合わせフォームはこちら
並び替え
2182件中 1901-2000件表示
1 19 20 21 22

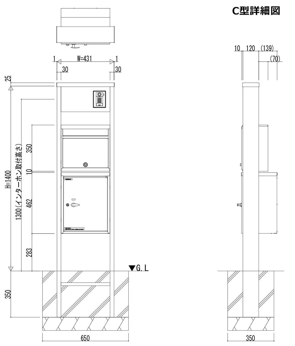
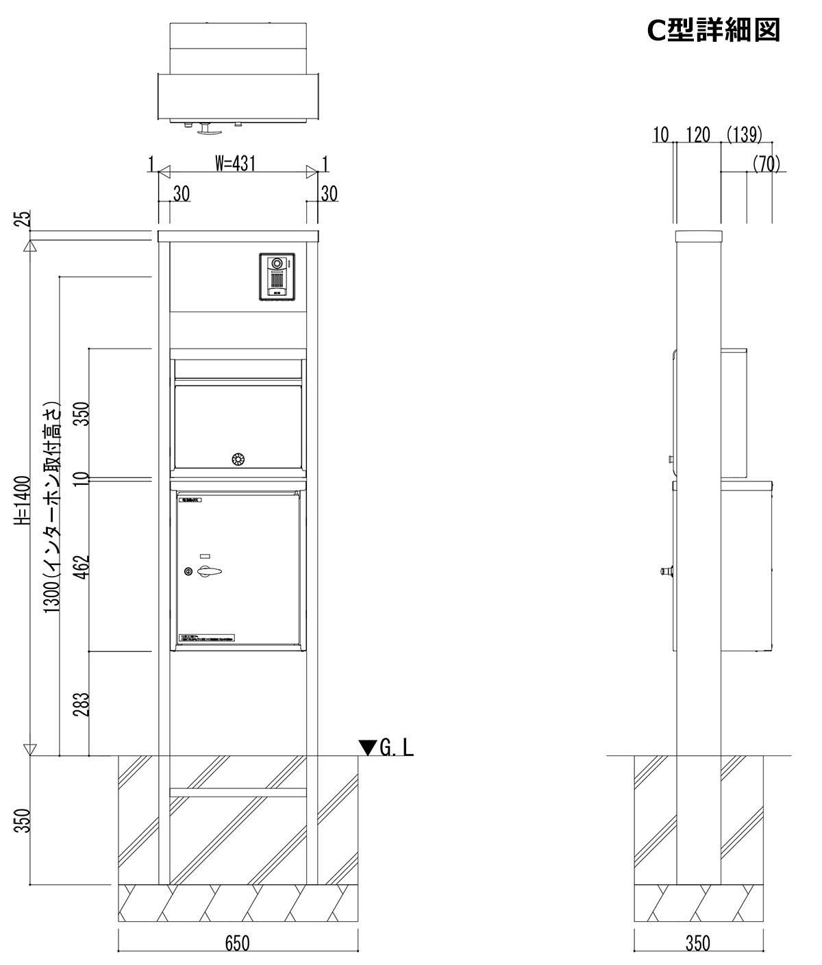
大型郵便物に対応したデザイン機能門柱
《メーカー修理対応有》【無料★特典付】
リクシル 機能門柱FS 組み合わせ例12
門柱+ポスト前出し+宅配ボックス
おしゃれ クール 大型郵便物対応 LIXIL
シンプル 郵便受け 郵便ポスト 門柱 ポスト 戸建て 玄関 庭 かわいい 宅配 新居 新築 お祝い

定価 ¥ 379,060 のところ
販売価格 ¥ 197,810 税込
詳細を見る

大型郵便物に対応したデザイン機能門柱
《メーカー修理対応有》【無料★特典付】
リクシル 機能門柱FS 組み合わせ例11
門柱+ポスト前出し+宅配ボックス
おしゃれ クール 大型郵便物対応 LIXIL
シンプル 郵便受け 郵便ポスト 門柱 ポスト 戸建て 玄関 庭 かわいい 宅配 新居 新築 お祝い

定価 ¥ 367,730 のところ
販売価格 ¥ 184,240 税込
詳細を見る

メール便や宅配便に対応し機能と意匠性をアップさせたフレムス!
【無料★特典付】
機能ポール フレムス ライト Light
サイドスクリーン付きタイプ 横スパンドレルタイプ
本体:木調色 サイドスクリーン:形材色
照明なし
宅配ボックス【P型】:ラージ
大容量 一戸建て用
門柱 ポスト 機能門柱 三協アルミ

定価 ¥ 339,020 のところ
販売価格 ¥ 187,000 税込
詳細を見る

メール便や宅配便に対応し機能と意匠性をアップさせたフレムス!
【無料★特典付】
機能ポール フレムス ライト Light
サイドスクリーン付きタイプ 横スパンドレルタイプ
本体:木調色 サイドスクリーン:形材色
照明なし
宅配ボックス【P型】:ミドル
大容量 一戸建て用
門柱 ポスト 機能門柱 三協アルミ

定価 ¥ 317,130 のところ
販売価格 ¥ 174,900 税込
詳細を見る

メール便や宅配便に対応し機能と意匠性をアップさせたフレムス!
【無料★特典付】
機能ポール フレムス ライト Light
サイドスクリーン付きタイプ 横スパンドレルタイプ
本体:形材色 サイドスクリーン:形材色
照明なし
宅配ボックス【P型】:ラージ
大容量 一戸建て用
門柱 ポスト 機能門柱 三協アルミ

定価 ¥ 323,070 のところ
販売価格 ¥ 178,000 税込
詳細を見る

メール便や宅配便に対応し機能と意匠性をアップさせたフレムス!
【無料★特典付】
機能ポール フレムス ライト Light
サイドスクリーン付きタイプ 横スパンドレルタイプ
本体:形材色 サイドスクリーン:形材色
照明なし
宅配ボックス【P型】:ミドル
大容量 一戸建て用
門柱 ポスト 機能門柱 三協アルミ

定価 ¥ 301,180 のところ
販売価格 ¥ 166,100 税込
詳細を見る

メール便や宅配便に対応し機能と意匠性をアップさせたフレムス!
【無料★特典付】
機能ポール フレムス ライト Light
サイドスクリーン付きタイプ たて板格子タイプ
本体:木調色 サイドスクリーン:木調色
照明なし
宅配ボックス【P型】:ラージ
大容量 一戸建て用
門柱 ポスト 機能門柱 三協アルミ

定価 ¥ 339,020 のところ
販売価格 ¥ 187,000 税込
詳細を見る

メール便や宅配便に対応し機能と意匠性をアップさせたフレムス!
【無料★特典付】
機能ポール フレムス ライト Light
サイドスクリーン付きタイプ たて板格子タイプ
本体:木調色 サイドスクリーン:木調色
照明なし
宅配ボックス【P型】:ミドル
大容量 一戸建て用
門柱 ポスト 機能門柱 三協アルミ

定価 ¥ 317,130 のところ
販売価格 ¥ 174,900 税込
詳細を見る

メール便や宅配便に対応し機能と意匠性をアップさせたフレムス!
【無料★特典付】
機能ポール フレムス ライト Light
サイドスクリーン付きタイプ たて板格子タイプ
本体:形材色 サイドスクリーン:木調色
照明なし
宅配ボックス【P型】:ラージ
大容量 一戸建て用
門柱 ポスト 機能門柱 三協アルミ

定価 ¥ 323,070 のところ
販売価格 ¥ 178,000 税込
詳細を見る

メール便や宅配便に対応し機能と意匠性をアップさせたフレムス!
【無料★特典付】
機能ポール フレムス ライト Light
サイドスクリーン付きタイプ たて板格子タイプ
本体:形材色 サイドスクリーン:木調色
照明なし
宅配ボックス【P型】:ミドル
大容量 一戸建て用
門柱 ポスト 機能門柱 三協アルミ

定価 ¥ 301,180 のところ
販売価格 ¥ 166,100 税込
詳細を見る

メール便や宅配便に対応し機能と意匠性をアップさせたフレムス!
【無料★特典付】
機能ポール フレムス ライト Light
サイドスクリーン付きタイプ たて格子タイプ
本体:木調色 サイドスクリーン:木調色
照明なし
宅配ボックス【P型】:ラージ
大容量 一戸建て用
門柱 ポスト 機能門柱 三協アルミ

定価 ¥ 339,020 のところ
販売価格 ¥ 187,000 税込
詳細を見る

メール便や宅配便に対応し機能と意匠性をアップさせたフレムス!
【無料★特典付】
機能ポール フレムス ライト Light
サイドスクリーン付きタイプ たて格子タイプ
本体:木調色 サイドスクリーン:木調色
照明なし
宅配ボックス【P型】:ミドル
大容量 一戸建て用
門柱 ポスト 機能門柱 三協アルミ

定価 ¥ 317,130 のところ
販売価格 ¥ 174,900 税込
詳細を見る

メール便や宅配便に対応し機能と意匠性をアップさせたフレムス!
【無料★特典付】
機能ポール フレムス ライト Light
サイドスクリーン付きタイプ たて格子タイプ
本体:形材色 サイドスクリーン:木調色
照明なし
宅配ボックス【P型】:ラージ
大容量 一戸建て用
門柱 ポスト 機能門柱 三協アルミ

定価 ¥ 323,070 のところ
販売価格 ¥ 178,000 税込
詳細を見る

メール便や宅配便に対応し機能と意匠性をアップさせたフレムス!
【無料★特典付】
機能ポール フレムス ライト Light
サイドスクリーン付きタイプ たて格子タイプ
本体:形材色 サイドスクリーン:木調色
照明なし
宅配ボックス【P型】:ミドル
大容量 一戸建て用
門柱 ポスト 機能門柱 三協アルミ

定価 ¥ 301,180 のところ
販売価格 ¥ 166,100 税込
詳細を見る

メール便や宅配便に対応し機能と意匠性をアップさせたフレムス!
【無料★特典付】
機能ポール フレムス ライト Light
サイドスクリーン付きタイプ たて格子タイプ
本体:木調色 サイドスクリーン:形材色
照明なし
宅配ボックス【P型】:ラージ
大容量 一戸建て用
門柱 ポスト 機能門柱 三協アルミ

定価 ¥ 319,990 のところ
販売価格 ¥ 176,400 税込
詳細を見る

メール便や宅配便に対応し機能と意匠性をアップさせたフレムス!
【無料★特典付】
機能ポール フレムス ライト Light
サイドスクリーン付きタイプ たて格子タイプ
本体:木調色 サイドスクリーン:形材色
照明なし
宅配ボックス【P型】:ミドル
大容量 一戸建て用
門柱 ポスト 機能門柱 三協アルミ

定価 ¥ 298,100 のところ
販売価格 ¥ 164,400 税込
詳細を見る

メール便や宅配便に対応し機能と意匠性をアップさせたフレムス!
【無料★特典付】
機能ポール フレムス ライト Light
サイドスクリーン付きタイプ たて格子タイプ
本体:形材色 サイドスクリーン:形材色
照明なし
宅配ボックス【P型】:ラージ
大容量 一戸建て用
門柱 ポスト 機能門柱 三協アルミ

定価 ¥ 304,040 のところ
販売価格 ¥ 167,700 税込
詳細を見る

メール便や宅配便に対応し機能と意匠性をアップさせたフレムス!
【無料★特典付】
機能ポール フレムス ライト Light
サイドスクリーン付きタイプ たて格子タイプ
本体:形材色 サイドスクリーン:形材色
照明なし
宅配ボックス【P型】:ミドル
大容量 一戸建て用
門柱 ポスト 機能門柱 三協アルミ

定価 ¥ 282,150 のところ
販売価格 ¥ 155,600 税込
詳細を見る

YKKap正規販売店だからできる大特価!使いやすい充実の機能を搭載したポスト一体型の木目調の機能門柱!
【無料★特典付】門柱 機能ポール
YKKap ルシアスポストユニット HD03型 (100V)照明付き本体 T13型ポスト(防犯錠) セット 上入れ前出し
YKK UMB-HD03 鍵付き 郵便ポスト 郵便受け 機能門柱

定価 ¥ 93,060 のところ
販売価格 ¥ 45,400 税込
詳細を見る

YKKap正規販売店だからできる大特価!使いやすい充実の機能を搭載したポスト一体型の木目調の機能門柱!
【無料★特典付】門柱 機能ポール
YKKap ルシアスポストユニット HD03型 (100V)照明付き本体 T13型ポスト(簡易錠) セット 上入れ前出し
YKK UMB-HD03 鍵付き 郵便ポスト 郵便受け 機能門柱

定価 ¥ 86,790 のところ
販売価格 ¥ 42,100 税込
詳細を見る

YKKap正規販売店だからできる大特価!使いやすい充実の機能を搭載したポスト一体型の木目調の機能門柱!
【無料★特典付】門柱 機能ポール
YKKap ルシアスポストユニット HD03型 (100V)照明付き本体 T12型ポスト セット 前入れ前出し
YKK UMB-HD03 鍵付き 郵便ポスト 郵便受け 機能門柱

定価 ¥ 141,130 のところ
販売価格 ¥ 70,100 税込
詳細を見る

YKKap正規販売店だからできる大特価!使いやすい充実の機能を搭載したポスト一体型の木目調の機能門柱!
【無料★特典付】門柱 機能ポール
YKKap ルシアスポストユニット HD03型 (100V)照明付き本体 T10型ポスト(複合色) セット 前入れ前出し
YKK UMB-HD03 鍵付き 郵便ポスト 郵便受け 機能門柱

定価 ¥ 130,020 のところ
販売価格 ¥ 64,300 税込
詳細を見る

YKKap正規販売店だからできる大特価!使いやすい充実の機能を搭載したポスト一体型の木目調の機能門柱!
【無料★特典付】門柱 機能ポール
YKKap ルシアスポストユニット HD03型 (100V)照明付き本体 T10型ポスト(アルミ色) セット 前入れ前出し
YKK UMB-HD03 鍵付き 郵便ポスト 郵便受け 機能門柱

定価 ¥ 120,450 のところ
販売価格 ¥ 59,500 税込
詳細を見る

YKKap正規販売店だからできる大特価!使いやすい充実の機能を搭載したポスト一体型の木目調の機能門柱!
【無料★特典付】門柱 機能ポール
YKKap ルシアスポストユニット HD03型 (100V)照明付き本体 T6B型ポスト セット 上入れ上出し
YKK UMB-HD03 鍵付き 郵便ポスト 郵便受け 機能門柱

定価 ¥ 106,480 のところ
販売価格 ¥ 52,300 税込
詳細を見る

YKKap正規販売店だからできる大特価!シンプルで使いやすい充実の機能を搭載したポスト一体型の機能門柱!
【無料★特典付】門柱 機能ポール
YKKap シンプレオポストユニット 1型 照明付き(100V照明)本体 T13型ポスト(防犯錠) セット 上入れ前出し
YKK HMB-1 鍵付き 郵便ポスト 郵便受け 機能門柱

定価 ¥ 78,100 のところ
販売価格 ¥ 37,720 税込
詳細を見る

和モダンに映える重厚感のあるハイセンス機能門柱ステイムAJ!
門柱 機能門柱
機能ポール ステイム AJタイプ シリンダー錠タイプ【防犯ディンプル錠 / 前入れ後ろ出し】
三協アルミ ミューテリア sty.M ポスト 鍵付き KT色(黒×ブラック) AK色(赤×ブラック) 郵便ポスト 郵便受け 照明 STM-AJ TYPE 受注生産

定価 ¥ 440,110 のところ
販売価格 ¥ 217,580 税込
詳細を見る

和モダンに映える重厚感のあるハイセンス機能門柱ステイムAJ!
門柱 機能門柱
機能ポール ステイム AJタイプ ダイヤル錠タイプ【防犯錠:2桁合わせ / 前入れ後ろ出し】
三協アルミ ミューテリア sty.M ポスト 鍵付き KT色(黒×ブラック) AK色(赤×ブラック) 郵便ポスト 郵便受け 照明 STM-AJ TYPE 受注生産

定価 ¥ 446,490 のところ
販売価格 ¥ 219,220 税込
詳細を見る

ハイセンスな見た目がアプローチを彩る機能門柱ステイムA!
門柱 機能門柱
機能ポール ステイム Aタイプ シリンダー錠タイプ【防犯ディンプル錠 / 前入れ後ろ出し】
三協アルミ ミューテリア sty.M ポスト 鍵付き SI色(シルバー×ブラック) 郵便ポスト 郵便受け 照明 STM-A TYPE 受注生産

定価 ¥ 396,330 のところ
販売価格 ¥ 196,000 税込
詳細を見る

ハイセンスな見た目がアプローチを彩る機能門柱ステイムA!
門柱 機能門柱
機能ポール ステイム Aタイプ ダイヤル錠タイプ【防犯錠:2桁合わせ / 前入れ後ろ出し】
三協アルミ ミューテリア sty.M ポスト 鍵付き SI色(シルバー×ブラック) 郵便ポスト 郵便受け 照明 STM-A TYPE

定価 ¥ 402,710 のところ
販売価格 ¥ 197,230 税込
詳細を見る

継ぎ目のないスマートなノイズレスポールです
【無料★特典付】
機能ポール モデアII
LED照明内蔵タイプ
前入れ横出し
明るさセンサーパネル付き
三協アルミ
門柱 ポスト 機能門柱 一戸建て用 屋外 人気 スマート モデア2
おしゃれ シンプル 戸建て 玄関 庭 宅配 新居 新築 リフォーム

定価 ¥ 301,730 のところ
販売価格 ¥ 160,490 税込
詳細を見る

継ぎ目のないスマートなノイズレスポールです
【無料★特典付】
機能ポール モデアII
LED照明内蔵タイプ
前入れ後出し
明るさセンサーパネル付き
三協アルミ
門柱 ポスト 機能門柱 一戸建て用 屋外 人気 スマート モデア2
おしゃれ シンプル 戸建て 玄関 庭 宅配 新居 新築 リフォーム

定価 ¥ 301,730 のところ
販売価格 ¥ 160,490 税込
詳細を見る

継ぎ目のないスマートなノイズレスポールです
【無料★特典付】
機能ポール モデアII
LED照明内蔵タイプ
前入れ横出し
三協アルミ
門柱 ポスト 機能門柱 一戸建て用 屋外 人気 スマート モデア2
おしゃれ シンプル 戸建て 玄関 庭 一体型セット 宅配 新居 新築 エクステリア リフォーム

定価 ¥ 283,030 のところ
販売価格 ¥ 150,500 税込
詳細を見る

継ぎ目のないスマートなノイズレスポールです
【無料★特典付】
機能ポール モデアII
LED照明内蔵タイプ
前入れ後出し
三協アルミ
門柱 ポスト 機能門柱 一戸建て用 屋外 人気 スマート モデア2
おしゃれ シンプル 戸建て 玄関 庭 一体型セット 宅配 新居 新築 エクステリア リフォーム

定価 ¥ 283,030 のところ
販売価格 ¥ 150,500 税込
詳細を見る

門周りに必要な機能をシンプルにまとめた機能門柱
《メーカー修理対応有》【無料★特典付】
LIXIL スマート宅配ポストTA
ファンクション仕様
後出し 左開き カメラ無し
照明付き(明るさセンサー有り)
フレーム:木調色
ホームユニット別売
リクシル
宅配ボックス付き機能門柱

定価 ¥ 395,890 のところ
販売価格 ¥ 248,200 税込
詳細を見る

門周りに必要な機能をシンプルにまとめた機能門柱
《メーカー修理対応有》【無料★特典付】
LIXIL スマート宅配ポストTA
ファンクション仕様
後出し 左開き カメラ無し
照明付き(明るさセンサー有り)
フレーム:塗装色
ホームユニット別売
リクシル
宅配ボックス付き機能門柱

定価 ¥ 387,310 のところ
販売価格 ¥ 242,280 税込
詳細を見る

門周りに必要な機能をシンプルにまとめた機能門柱
《メーカー修理対応有》【無料★特典付】
LIXIL スマート宅配ポストTA
ファンクション仕様
後出し 右開き カメラ無し
照明付き(明るさセンサー有り)
フレーム:木調色
ホームユニット別売
リクシル
宅配ボックス付き機能門柱

定価 ¥ 395,890 のところ
販売価格 ¥ 248,200 税込
詳細を見る

門周りに必要な機能をシンプルにまとめた機能門柱
《メーカー修理対応有》【無料★特典付】
LIXIL スマート宅配ポストTA
ファンクション仕様
後出し 右開き カメラ無し
照明付き(明るさセンサー有り)
フレーム:塗装色
ホームユニット別売
リクシル
宅配ボックス付き機能門柱

定価 ¥ 387,310 のところ
販売価格 ¥ 242,280 税込
詳細を見る

門周りに必要な機能をシンプルにまとめた機能門柱
《メーカー修理対応有》【無料★特典付】
LIXIL スマート宅配ポストTA
ファンクション仕様
後出し 左開き カメラ付き
照明付き(明るさセンサー有り)
フレーム:木調色
ホームユニット別売
リクシル
宅配ボックス付き機能門柱

定価 ¥ 431,090 のところ
販売価格 ¥ 270,730 税込
詳細を見る

門周りに必要な機能をシンプルにまとめた機能門柱
《メーカー修理対応有》【無料★特典付】
LIXIL スマート宅配ポストTA
ファンクション仕様
後出し 左開き カメラ付き
照明付き(明るさセンサー有り)
フレーム:塗装色
ホームユニット別売
リクシル
宅配ボックス付き機能門柱

定価 ¥ 422,510 のところ
販売価格 ¥ 266,060 税込
詳細を見る

門周りに必要な機能をシンプルにまとめた機能門柱
《メーカー修理対応有》【無料★特典付】
LIXIL スマート宅配ポストTA
ファンクション仕様
後出し 右開き カメラ付き
照明付き(明るさセンサー有り)
フレーム:木調色
ホームユニット別売
リクシル
宅配ボックス付き機能門柱

定価 ¥ 431,090 のところ
販売価格 ¥ 270,730 税込
詳細を見る

門周りに必要な機能をシンプルにまとめた機能門柱
《メーカー修理対応有》【無料★特典付】
LIXIL スマート宅配ポストTA
ファンクション仕様
後出し 右開き カメラ付き
照明付き(明るさセンサー有り)
フレーム:塗装色
ホームユニット別売
リクシル
宅配ボックス付き機能門柱

定価 ¥ 422,510 のところ
販売価格 ¥ 266,060 税込
詳細を見る

門周りに必要な機能をシンプルにまとめた機能門柱
《メーカー修理対応有》【無料★特典付】
LIXIL スマート宅配ポストTA
ファンクション仕様
後出し 左開き カメラ無し
照明なし
フレーム:木調色
ホームユニット別売
大容量 リクシル おしゃれ
一戸建て用 宅配ボックス付き機能門柱

定価 ¥ 374,550 のところ
販売価格 ¥ 230,950 税込
詳細を見る

門周りに必要な機能をシンプルにまとめた機能門柱
《メーカー修理対応有》【無料★特典付】
LIXIL スマート宅配ポストTA
ファンクション仕様
後出し 左開き カメラ無し
照明なし
フレーム:塗装色
ホームユニット別売
大容量 リクシル おしゃれ
一戸建て用 宅配ボックス付き機能門柱

定価 ¥ 365,970 のところ
販売価格 ¥ 226,310 税込
詳細を見る

門周りに必要な機能をシンプルにまとめた機能門柱
《メーカー修理対応有》【無料★特典付】
LIXIL スマート宅配ポストTA
ファンクション仕様
後出し 右開き カメラ無し
照明なし
フレーム:木調色
ホームユニット別売
大容量 リクシル おしゃれ
一戸建て用 宅配ボックス付き機能門柱

定価 ¥ 374,550 のところ
販売価格 ¥ 230,950 税込
詳細を見る

門周りに必要な機能をシンプルにまとめた機能門柱
《メーカー修理対応有》【無料★特典付】
LIXIL スマート宅配ポストTA
ファンクション仕様
後出し 右開き カメラ無し
照明なし
フレーム:塗装色
ホームユニット別売
大容量 リクシル おしゃれ
一戸建て用 宅配ボックス付き機能門柱

定価 ¥ 365,970 のところ
販売価格 ¥ 226,310 税込
詳細を見る

門周りに必要な機能をシンプルにまとめた機能門柱
《メーカー修理対応有》【無料★特典付】
LIXIL スマート宅配ポストTA
ファンクション仕様
後出し 左開き カメラ付き
照明なし
フレーム:木調色
ホームユニット別売
大容量 リクシル おしゃれ
一戸建て用 宅配ボックス付き機能門柱

定価 ¥ 409,750 のところ
販売価格 ¥ 253,660 税込
詳細を見る

門周りに必要な機能をシンプルにまとめた機能門柱
《メーカー修理対応有》【無料★特典付】
LIXIL スマート宅配ポストTA
ファンクション仕様
後出し 左開き カメラ付き
照明なし
フレーム:塗装色
ホームユニット別売
大容量 リクシル おしゃれ
一戸建て用 宅配ボックス付き機能門柱

定価 ¥ 401,170 のところ
販売価格 ¥ 248,980 税込
詳細を見る

門周りに必要な機能をシンプルにまとめた機能門柱
《メーカー修理対応有》【無料★特典付】
LIXIL スマート宅配ポストTA
ファンクション仕様
後出し 右開き カメラ付き
照明なし
フレーム:木調色
ホームユニット別売
大容量 リクシル おしゃれ
一戸建て用 宅配ボックス付き機能門柱

定価 ¥ 409,750 のところ
販売価格 ¥ 253,660 税込
詳細を見る

門周りに必要な機能をシンプルにまとめた機能門柱
《メーカー修理対応有》【無料★特典付】
LIXIL スマート宅配ポストTA
ファンクション仕様
後出し 右開き カメラ付き
照明なし
フレーム:塗装色
ホームユニット別売
大容量 リクシル おしゃれ
一戸建て用 宅配ボックス付き機能門柱

定価 ¥ 401,170 のところ
販売価格 ¥ 248,980 税込
詳細を見る

人気の宅配ポスト、ボビカーゴの機能ポールセット!
【無料★特典付】門柱 ポスト 宅配ボックス 一戸建て用
ボビカーゴ ボビラウンド+メリピラリ(ピート)セット
セキスイデザインワークス 郵便ポスト 郵便受け ポール式 鍵付き ボビポスト bobiシリーズ 北欧 前入れ前出し

定価 ¥ 341,770 のところ
販売価格 ¥ 270,680 税込
詳細を見る

人気の宅配ポスト、ボビカーゴの機能ポールセット!
【無料★特典付】門柱 ポスト 宅配ボックス 一戸建て用
ボビカーゴ ボビラウンド+メリピラリ(バロ)セット
セキスイデザインワークス 郵便ポスト 郵便受け ポール式 鍵付き ボビポスト bobiシリーズ 北欧 前入れ前出し

定価 ¥ 331,100 のところ
販売価格 ¥ 262,720 税込
詳細を見る

人気の宅配ポスト、ボビカーゴの機能ポールセット!
【無料★特典付】門柱 ポスト 宅配ボックス 一戸建て用
ボビカーゴ ボビラウンド+メリピラリ(ソポ)セット
セキスイデザインワークス 郵便ポスト 郵便受け ポール式 鍵付き ボビポスト bobiシリーズ 北欧 前入れ前出し

定価 ¥ 334,400 のところ
販売価格 ¥ 264,550 税込
詳細を見る

門周りに洗練された存在感をもたらすファンクションユニット
《メーカー修理対応有》【無料★特典付】
リクシル ファンクションユニット
ウィルモダンスリム 組合せ11
2世帯柱+ポスト+照明なし+ステンレスサイン+ガラスブロック(クリア)
スリム縦型
サインシミュレーション対応
インターホン加工有り

定価 ¥ 482,790 のところ
販売価格 ¥ 250,730 税込
詳細を見る

フレームデザインの宅配ボックス付き門柱
【無料★特典付】
機能門柱 ルシアスポストユニット HC01型 照明なしタイプ
本体:複合色
ポストN1型(前出し)
ポスティモ宅配ボックス1型
門柱 ポスト 宅配ボックス YKKap UMB-HC01 郵便ポスト 郵便受け 宅配ポスト 機能ポール 一戸建て用 一体型

定価 ¥ 223,190 のところ
販売価格 ¥ 114,000 税込
在庫切れ
詳細を見る

プレミアム感あふれるファンクションユニット
《メーカー修理対応有》【無料★特典付】
リクシル ファンクションユニット
ウィルモダン 組合せ例 10
柱+ポスト+ステンレスサイン+プランターハンガー
エクスポストグレイス 前入れ前出し
サインシミュレーション対応タイプ
LIXIL 機能門柱

定価 ¥ 235,290 のところ
販売価格 ¥ 116,160 税込
詳細を見る

使いやすさと美しさを追求したファンクションユニット
《メーカー修理対応有》【無料★特典付】
ファンクションユニット
アクシィ2型
柱(木調色)+ポスト+アクリル表札(照明無し)
アクシィ縦型(デザインパネル) 前入れ横出し
インターホン加工無し
LIXIL リクシル アクシィ
機能門柱 戸建て

定価 ¥ 104,720 のところ
販売価格 ¥ 51,890 税込
詳細を見る

使いやすさと美しさを追求したファンクションユニット
《メーカー修理対応有》【無料★特典付】
ファンクションユニット
アクシィ2型
柱(形材色)+ポスト+アクリル表札(照明無し)
アクシィ縦型(デザインパネル) 前入れ横出し
インターホン加工無し
LIXIL リクシル アクシィ
機能門柱 戸建て

定価 ¥ 97,790 のところ
販売価格 ¥ 50,030 税込
詳細を見る

使いやすさと美しさを追求したファンクションユニット
《メーカー修理対応有》【無料★特典付】
ファンクションユニット
アクシィ2型
柱(形材色)+ポスト+アクリル表札(照明無し)
アクシィ縦型 前入れ横出し
インターホン加工無し
LIXIL リクシル アクシィ
機能門柱 おしゃれ 戸建て

定価 ¥ 93,720 のところ
販売価格 ¥ 45,370 税込
詳細を見る

使いやすさと美しさを追求したファンクションユニット
《メーカー修理対応有》【無料★特典付】
ファンクションユニット
アクシィ2型
柱(木調色)+ポスト+アクリル表札(照明無し)
アクシィ縦型(デザインパネル) 前入れ後出し
インターホン加工無し
LIXIL リクシル アクシィ
機能門柱 戸建て

定価 ¥ 99,440 のところ
販売価格 ¥ 49,320 税込
詳細を見る

使いやすさと美しさを追求したファンクションユニット
《メーカー修理対応有》【無料★特典付】
ファンクションユニット
アクシィ2型
柱(形材色)+ポスト+アクリル表札(照明無し)
アクシィ縦型(デザインパネル) 前入れ後出し
インターホン加工無し
LIXIL リクシル アクシィ
機能門柱 戸建て

定価 ¥ 92,510 のところ
販売価格 ¥ 45,980 税込
詳細を見る
並び替え
2182件中 1901-2000件表示
1 19 20 21 22