エクステリア専門相談サポート窓口
0572-26-8050

受付時間平日 9:00〜17:00

幅 360mm のコンパクトサイズだから省スペースで設置可能
集合住宅用 宅配ボックス
宅配ボックス GXC-2 上段タイプ 小型荷物用 前入れ前出し Sステンレス
田島メタルワーク 郵便ポスト 郵便受け 据置 マンション アパート 集合住宅 屋内用

商品番号 TJM-GXC-2-S
定価 ¥ 174,900 のところ
販売価格 ¥ 113,300 税込
[ 1,030 ポイント進呈 ]
送料込


集合住宅用 宅配ボックス 小型荷物用 GXC-2(上段タイプ) 前入れ前出し
ワイド 360mm のコンパクトサイズだから省スペースで設置できます
販売条件 ◆詳しくはこちらをご確認ください
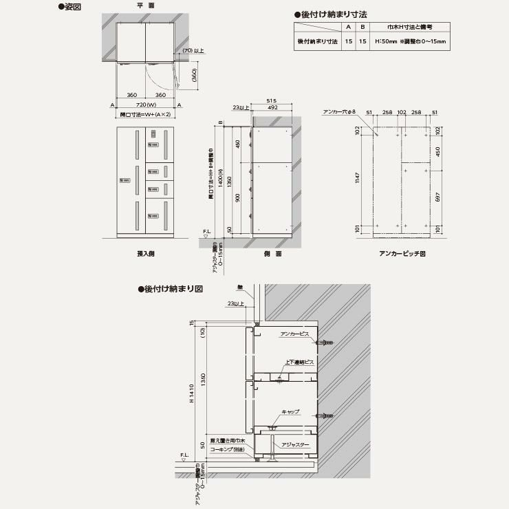
サイズ W360×H450×D515mm 重量:15kg
カラー Sステンレス
仕様 集合住宅用宅配ボックス(組み合わせ可能郵便受箱:MX-18・MX-20)/小型荷物用/耐荷重30kg/据置型
前入れ前出し/ダイヤル錠/屋内用 ※捺印装置、巾木(別売り)は必ず設置してください。
材質 箱本体:スチール(メラミン樹脂焼付塗装仕上) 扉:ステンレス(ヘアライン仕上)、クリア塗装
セット内容 ■田島メタルワーク 宅配ボックス GXC-2(上段タイプ)
備考・注意 ※出荷までに3週間程度、お時間が必要となります。
※こちらの商品は屋内仕様です。半屋内や常時外気の当たる場所への設置は結露により故障の原因となりますのでできません。
※イメージ画像はイメージサンプルとして販売内容以外の商品があります。必ず内容を確認ください。
※イメージ画像は使用するモニターやブラウザにより色が違って見える場合があります。
※施工には、専門的な知識と、道具、技能が必要となります。お近くの工事店 (例:外構をした会社)にて設置を依頼して頂くようお願い致します。
分類 【郵便ポスト・郵便受け】【宅配ボックス】【集合郵便受箱】【田島メタルワーク】

【この商品のQRコードはこちら】
大人気おすすめ商品
田島メタルワーク 集合住宅用宅配ボックス シリーズ
田島メタルワーク 集合住宅用ポスト シリーズ
田島メタルの集合住宅用機械式宅配ボックスは、長年の実績に裏打ちされた高い信頼性と耐久性が特長です。
電源不要の機械式構造により、停電時でも安定して使用でき、ランニングコストを抑えたいマンション・アパートに最適。
シンプルで分かりやすい操作性は、入居者・管理者双方の負担を軽減します。
豊富なサイズ展開と堅牢な設計で、防犯性と利便性を両立した宅配ボックスとして高い評価を得ています。
●その他の「一流メーカー宅配ボックス」も多数取り扱っております!
※未掲載商品をお探しの方はお問い合わせください!
【ユニソン】
ヴィコDB・ケイト・コルディア・コルディアラック・フロリア・リピットDB
【LIXIL リクシル】
宅配ボックスKT・宅配ボックスKL・スマート宅配ポストTA型・スマート宅配ポストTB型
【YKKap】
ピタットkeyシステムルシアス 宅配ボックス1型・ルシアス 宅配ポスト1型・ルシアス 宅配ポスト2型・シンプレオシリーズ ポスティモ 宅配ボックス1型
【三協アルミ】
フレムス Light S型・フレムス
【オンリーワン クラブ】
デポ・コロン・ヴェリータエボルタ ネロ・ガレット・マカロン・フォルン・エンティガ・キャス・ヴェリータ NX・ポスト&宅配ボックス カレ・カーメル ブロスII・ラウム・コール・スタッフII・スタッフI
【セキスイ エクステリア】
bobi Cargo(ボビカーゴ)・ドゥオモ・ed-CUBE・ノボックス・S.P.B
【パナソニック Panasonic】
エントランスポール アーキフレーム・コンボ・コンボライト・コンボイント・コンボエフ・コンボメゾン・イーコンボライト・コンボフラット
【Brizebox ブライズボックス】
スタンダード・ラージ・EXラージ
【ナスタ Nasta】
プチ宅・プチ宅・REGULAR・KS-TLT450・KS-TLT240・KS-ATSB002・KS-TLU160・KS-TLT340-FN415・KS-TL01R・KS-TL01RC・KS-TLP28・KS-TLP36・KS-TLT340-F
【KGY工業】
KGY・リシムワイド・THB-276・THB-276DW・THB-3115・THB-382・THB-3DanE・リシムユニットE・One・THB-181・リシム コトン・THB-258N
【ダイケン】
TBX-F1・TBX-F2・TBX-F・TBX-G・TBX-G1・TBX-G2・TBX-D・TBX-BDシリーズ
【神栄ホームクリエイト】
CBX-401・CBX-701・CBX-301・CBX-601・CBX-102・CBX-202・CBX-103


















田島メタルワーク 集合住宅用ポスト 一覧からお選びいただけます


おすすめ商品

前へ

表札 ポスト以外にも貼れる! 大人気ポスト クルム SWE ユーロバッグ フェイサス や 機能門柱 ステイム にも貼付けて使える!
【高耐候性表札ネームシール】
ユニソン 郵便ポスト クルム 三協アルミ SWE 機能門柱 ステイム 人気ポスト ユーロバッグ フェイサス YKK フィッテ その他ポスト 機能ポール にも対応

定価 ¥ 3,850 のところ
販売価格 ¥ 1,500 税込
詳細を見る

販売記念!今だけ会員様なら10%OFF!貼るだけで屋外・屋内問わず、どこでも使える便利な表札!
アクリル表札 ネームプレート
二層板表札【サイズ:120×30mm】
ユニソン 壁付けポスト クルム 三協アルミ SWE型ポスト 集合住宅用ポスト 機能門柱 機能ポールにも取り付け可能 貼り付けタイプ 表札

定価 ¥ 2,750 のところ
販売価格 ¥ 960 税込
会員特別価格 ¥ 871 税込
詳細を見る

シックでおしゃれなカラーが魅力のタイル表札
【安心保証付】【期間限定 ポイント10倍】 表札 タイル
TiNa ティナ Type01・02
サンプル画像:Type01【227×60mm】 タイル表札 国産タイル 貼り付け 簡単 取り付け 二世帯 戸建 門柱 機能門柱 おしゃれ ネームプレート オーダーメイド ローマ字 漢字 筆記体

定価 ¥ 16,500 のところ
販売価格 ¥ 7,500 税込
会員特別価格 ¥ 6,900 税込
詳細を見る

シックでおしゃれなカラーが魅力のタイル表札
【安心保証付】【期間限定 ポイント10倍】 表札 タイル
TiNa ティナ Type01・02
サンプル画像:Type02【107×60mm】 タイル表札 国産タイル 貼り付け 簡単 取り付け 二世帯 戸建 門柱 機能門柱 おしゃれ ネームプレート オーダーメイド ローマ字 漢字 筆記体

定価 ¥ 16,500 のところ
販売価格 ¥ 7,500 税込
会員特別価格 ¥ 6,900 税込
詳細を見る

クマザサも抑制できる防草シート!お得な固定資材付き!
【限定セール】防草シート
エコリア KMBS1500EX-50 固定資材付・強化タイプ(厚さ:0.5mm・サイズ:1.0m×50m) 砕石・砂利下・暴露用
サンガーデンエクステリア 雑草対策 雑草防止シート 除草シート 雑草シート 高密度長繊維不織布 小泉製麻 KOMA・ザバーン比較品

定価 ¥ 54,230 のところ
販売価格 ¥ 19,510 税込
次へ
エクステリアのプロ専門スタッフが商品選びから施工の準備相談まで解決! 0572-26-8050 お問い合わせフォームはこちら
エクステリアのプロ専門スタッフが商品選びから施工の準備相談まで解決! 0572-26-8050 お問い合わせフォームはこちら